
Henry Street, Kenilworth

- PROPERTY TYPE
Terraced
- BEDROOMS
3
- BATHROOMS
1
- SIZE
Ask agent
- TENUREDescribes how you own a property. There are different types of tenure - freehold, leasehold, and commonhold.Read more about tenure in our glossary page.
Freehold
Key features
- No Chain Involved
- Popular Location
- Ground Floor Extension
- Garage and Attractive Gardens
- EPC Rating C
Description
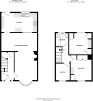
ENTRANCE HALL With radiator and understairs storage cupboard.
LOUNGE/DINER 21' 6" x 16' 9" (6.55m x 5.11m) A generous size 'L' shaped lounge/diner with feature fireplace, bay window to the front, two wall light points and two radiators.
EXTENDED KITCHEN 15' 3" x 7' 9" (4.65m x 2.36m) The good size kitchen is located to the rear of the house and is an extension from the original design. There are plenty of storage cupboards with matching wall units, integrated appliances to include fridge, freezer, washing machine and dishwasher plus electric hob and oven under. Radiator, large worktop space and door to rear garden.
FIRST FLOOR LANDING With access to roof storage space.
BEDROOM ONE 11' 2" x 9' 7" (3.4m x 2.92m) Having a range of built in bedroom furniture to include wardrobes, shelving, drawer units and wall storage units. Radiator.
BEDROOM TWO 10' 3" x 9' 9" (3.12m x 2.97m) A second double room located to the rear of the house and having garden views. Radiator and airing cupboard housing Vaillant gas boiler. Range of built in bedroom furniture to include wardrobes, dressing table unit and bedside table. Two wall light points.
BEDROOM THREE 8' 0" x 7' 0" (2.44m x 2.13m) A single bedroom to the front of the property with built in wardrobe/storage cupboard. Radiator.
BATHROOM 6' 4" x 5' 7" (1.93m x 1.7m) With vanity wash basin having cupboard under and concealed cistern w.c. Walk in hip bath with mixer tap and shower plus curtain rail over.
OUTSIDE
FRONT GARDEN The front garden provides easy maintenance with paving and stone chippings plus shrubs and a dwarf wall forms the front boundary.
REAR GARDEN There is pedestrian and vehicular rear access with a driveway to the side of the terrace. A gate leads into the rear garden which has an area of lawn plus shrubbery borders with patio and timber fencing forming the boundaries.
Brochures
Henry Street Broc...- COUNCIL TAXA payment made to your local authority in order to pay for local services like schools, libraries, and refuse collection. The amount you pay depends on the value of the property.Read more about council Tax in our glossary page.
- Band: C
- PARKINGDetails of how and where vehicles can be parked, and any associated costs.Read more about parking in our glossary page.
- Garage
- GARDENA property has access to an outdoor space, which could be private or shared.
- Yes
- ACCESSIBILITYHow a property has been adapted to meet the needs of vulnerable or disabled individuals.Read more about accessibility in our glossary page.
- Ask agent
Henry Street, Kenilworth
Add an important place to see how long it'd take to get there from our property listings.
__mins driving to your place
Get an instant, personalised result:
- Show sellers you’re serious
- Secure viewings faster with agents
- No impact on your credit score

Your mortgage
Notes
Staying secure when looking for property
Ensure you're up to date with our latest advice on how to avoid fraud or scams when looking for property online.
Visit our security centre to find out moreDisclaimer - Property reference 103644001451. The information displayed about this property comprises a property advertisement. Rightmove.co.uk makes no warranty as to the accuracy or completeness of the advertisement or any linked or associated information, and Rightmove has no control over the content. This property advertisement does not constitute property particulars. The information is provided and maintained by Julie Philpot, Kenilworth. Please contact the selling agent or developer directly to obtain any information which may be available under the terms of The Energy Performance of Buildings (Certificates and Inspections) (England and Wales) Regulations 2007 or the Home Report if in relation to a residential property in Scotland.
*This is the average speed from the provider with the fastest broadband package available at this postcode. The average speed displayed is based on the download speeds of at least 50% of customers at peak time (8pm to 10pm). Fibre/cable services at the postcode are subject to availability and may differ between properties within a postcode. Speeds can be affected by a range of technical and environmental factors. The speed at the property may be lower than that listed above. You can check the estimated speed and confirm availability to a property prior to purchasing on the broadband provider's website. Providers may increase charges. The information is provided and maintained by Decision Technologies Limited. **This is indicative only and based on a 2-person household with multiple devices and simultaneous usage. Broadband performance is affected by multiple factors including number of occupants and devices, simultaneous usage, router range etc. For more information speak to your broadband provider.
Map data ©OpenStreetMap contributors.





