
Blofield Corner Road, Blofield Heath, Norwich

Letting details
- Let available date:
- 05/01/2026
- Deposit:
- £1,442A deposit provides security for a landlord against damage, or unpaid rent by a tenant.Read more about deposit in our glossary page.
- Min. Tenancy:
- 6 months How long the landlord offers to let the property for.Read more about tenancy length in our glossary page.
- Let type:
- Short term
- Furnish type:
- Unfurnished
- Council Tax:
- Ask agent
- PROPERTY TYPE
Detached Bungalow
- BEDROOMS
3
- BATHROOMS
1
- SIZE
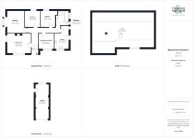
1,128 sq ft
105 sq m
Key features
- Modernised Detached Bungalow
- Popular Rural Village Location
- Walking Distance to Shop & Schools
- Over 1100 Sq. ft (stms)
- Two Reception Rooms
- Three Bedrooms
- Private Non-Overlooked Gardens
- 8'5 X 3'3 Garage & Ample Parking
Description
IN SUMMARY
With over 1100 Sq. ft (stms) of accommodation, this DETACHED BUNGALOW occupies a RURAL NON-ESTATE SETTING with ample PARKING and NON-OVERLOOKED GARDENS. With HUGE POTENTIAL to convert the LOFT AREA or EXTEND due to the bungalows CENTRAL POSITION on the plot (stp). The accommodation offers HARDWOOD FLOORING, and is FLEXIBLE, with a CENTRAL HALL leading to all rooms. The layout includes a 16' DUAL ASPECT SITTING ROOM, 14' main bedroom with BAY WINDOW, TWO FURTHER BEDROOMS, dining room/study, CLASSIC FITTED KITCHEN and re-fitted LARGE MODERN FAMILY BATHROOM with TILED SPLASH BACKS. The GARDEN is LAID TO LAWN with a PRIVATE ASPECT and raised timber DECKING with an adjacent SUMMER HOUSE.
SETTING THE SCENE
Screened from the road behind mature high level hedging, a lawned frontage and planting can be found, with an adjacent shingle driveway which in turn leads to the gated rear garden and larger than average garage.
THE GRAND TOUR
With a porch and hall entrance, hardwood flooring runs underfoot, with the L-shape hallway leading to all rooms. Starting with the sitting room, a feature brick open fire place creates a focal point to the room, with hardwood flooring and dual aspect windows to front and side. Adjacent is the Main Bedroom, finished with fitted carpet and a bay window to side - with a flexible use, a range of storage is built-in which can be used as wardrobes. The further two bedrooms are all a similar style, and offer fitted carpets. The dining room/study is finished with hardwood flooring for ease of maintenance. At the far end, the kitchen extends to 15', having been updated in a classic style, with integrated cooking appliances, and space for general white goods. Tiled splash backs and flooring are installed for ease of maintenance. The family bathroom completes the property, finished with four piece suite including a separate shower and bath, along with tiled splash backs and flooring.
FIND US
Postcode : NR13 4RT
What3Words : ///smelter.unleashed.fidgeted
VIRTUAL TOUR
View our virtual tour for a full 360 degree of the interior of the property.
Garden
THE GREAT OUTDOORS
The rear garden is laid to lawn, private and non-overlooked. A variety of planting and shrubbery can be found around the garden, with raised planted borders and a timber storage shed. Raised timber decking offers seating with a timber summer house which is perfectly placed to soak up the summer sun. Access leads to the side of the property and garage. The large garage (25'10" x 10'4") includes an electric front door, led strip lighting, sockets and side entrance.
Brochures
Property Brochure- COUNCIL TAXA payment made to your local authority in order to pay for local services like schools, libraries, and refuse collection. The amount you pay depends on the value of the property.Read more about council Tax in our glossary page.
- Band: D
- PARKINGDetails of how and where vehicles can be parked, and any associated costs.Read more about parking in our glossary page.
- Yes
- GARDENA property has access to an outdoor space, which could be private or shared.
- Private garden
- ACCESSIBILITYHow a property has been adapted to meet the needs of vulnerable or disabled individuals.Read more about accessibility in our glossary page.
- Ask agent
Energy performance certificate - ask agent
Blofield Corner Road, Blofield Heath, Norwich
Add an important place to see how long it'd take to get there from our property listings.
__mins driving to your place
Notes
Staying secure when looking for property
Ensure you're up to date with our latest advice on how to avoid fraud or scams when looking for property online.
Visit our security centre to find out moreDisclaimer - Property reference 50be5a62-77cf-40f5-86d6-252ba111e7d9. The information displayed about this property comprises a property advertisement. Rightmove.co.uk makes no warranty as to the accuracy or completeness of the advertisement or any linked or associated information, and Rightmove has no control over the content. This property advertisement does not constitute property particulars. The information is provided and maintained by Starkings & Watson, Norfolk & Suffolk. Please contact the selling agent or developer directly to obtain any information which may be available under the terms of The Energy Performance of Buildings (Certificates and Inspections) (England and Wales) Regulations 2007 or the Home Report if in relation to a residential property in Scotland.
*This is the average speed from the provider with the fastest broadband package available at this postcode. The average speed displayed is based on the download speeds of at least 50% of customers at peak time (8pm to 10pm). Fibre/cable services at the postcode are subject to availability and may differ between properties within a postcode. Speeds can be affected by a range of technical and environmental factors. The speed at the property may be lower than that listed above. You can check the estimated speed and confirm availability to a property prior to purchasing on the broadband provider's website. Providers may increase charges. The information is provided and maintained by Decision Technologies Limited. **This is indicative only and based on a 2-person household with multiple devices and simultaneous usage. Broadband performance is affected by multiple factors including number of occupants and devices, simultaneous usage, router range etc. For more information speak to your broadband provider.
Map data ©OpenStreetMap contributors.





