
Snowberry Crescent, Warrington

- PROPERTY TYPE
Mews
- BEDROOMS
3
- BATHROOMS
2
- SIZE
912 sq ft
85 sq m
Key features
- Three Bedrooms
- End Of Terace
- Sought-After Location
- Driveway Parking
- Modern Decor
- Close To Amenities
- First Time Buyers
- Close To Schools
- Two Bathrooms
- Bifold Doors
Description
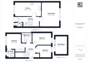
Interior - We proudly welcome this stylish three-bed end-of-terrace home to market, offering modern living throughout, perfect for buyers seeking a property which is move in ready! The interior boasts a bright, contemporary décor, featuring a spacious lounge that is situated to the rear of the home with bifold doors providing easy access to the rear garden. The kitchen/diner is the heart of this home offering a sleek, modern design with high-quality integrated appliances and ample workspace. A welcoming cosy seating area provides the perfect spot for the whole family to gather, relax, and enjoy mealtimes together in a warm, contemporary setting. The ground floor concludes with a handy WC. Upstairs, you will find three great sized bedrooms, the master bedroom benefits from fitted wardrobes and a modern family en-suite bathroom adding a sense of luxury to this space. The additional bedrooms share a three-piece family bathroom.
Garden - The rear garden offers a stylish, low-maintenance retreat featuring artificial grass that stays vibrant year-round. Beyond this, an attractive outbuilding designed for home working creates a quiet, dedicated workspace, blending convenience with comfort. This versatile outdoor space is ideal for modern living, offering room to unwind, work, and enjoy time with family and friends. Parking can be found to the front of the home via the driveway.
Services - • Gas Central Heating
• Mains connected: Gas, Electric, Water
• Drainage: Mains
• Broadband Availability: Up to 1132Mb (Via BT)
An attractive suburb located just two miles west of Warrington Town Centre, Great Sankey is popular area for families and professionals alike. With a dedicated train station servicing local towns and cities, the area is perfectly placed for commuting. Great Sankey boasts an abundance of highly achieving primary and secondary schools. It is also home to a recently refurbished leisure centre and a great selection of local shops, pubs and restaurants. The popular Gemini Park is close by and home to various superstores, including Ikea. Sankey Valley park, is on the doorstep for residents, which has plenty of attractions for all ages. There's a BMX track, various play areas and a theme park, not to mention the scenic walking and running routes.
Brochures
Snowberry Crescent, Warrington- COUNCIL TAXA payment made to your local authority in order to pay for local services like schools, libraries, and refuse collection. The amount you pay depends on the value of the property.Read more about council Tax in our glossary page.
- Band: C
- PARKINGDetails of how and where vehicles can be parked, and any associated costs.Read more about parking in our glossary page.
- Driveway
- GARDENA property has access to an outdoor space, which could be private or shared.
- Yes
- ACCESSIBILITYHow a property has been adapted to meet the needs of vulnerable or disabled individuals.Read more about accessibility in our glossary page.
- Ask agent
Snowberry Crescent, Warrington
Add an important place to see how long it'd take to get there from our property listings.
__mins driving to your place
Get an instant, personalised result:
- Show sellers you’re serious
- Secure viewings faster with agents
- No impact on your credit score
Your mortgage
Notes
Staying secure when looking for property
Ensure you're up to date with our latest advice on how to avoid fraud or scams when looking for property online.
Visit our security centre to find out moreDisclaimer - Property reference 34330656. The information displayed about this property comprises a property advertisement. Rightmove.co.uk makes no warranty as to the accuracy or completeness of the advertisement or any linked or associated information, and Rightmove has no control over the content. This property advertisement does not constitute property particulars. The information is provided and maintained by Mark Antony Estates, Warrington. Please contact the selling agent or developer directly to obtain any information which may be available under the terms of The Energy Performance of Buildings (Certificates and Inspections) (England and Wales) Regulations 2007 or the Home Report if in relation to a residential property in Scotland.
*This is the average speed from the provider with the fastest broadband package available at this postcode. The average speed displayed is based on the download speeds of at least 50% of customers at peak time (8pm to 10pm). Fibre/cable services at the postcode are subject to availability and may differ between properties within a postcode. Speeds can be affected by a range of technical and environmental factors. The speed at the property may be lower than that listed above. You can check the estimated speed and confirm availability to a property prior to purchasing on the broadband provider's website. Providers may increase charges. The information is provided and maintained by Decision Technologies Limited. **This is indicative only and based on a 2-person household with multiple devices and simultaneous usage. Broadband performance is affected by multiple factors including number of occupants and devices, simultaneous usage, router range etc. For more information speak to your broadband provider.
Map data ©OpenStreetMap contributors.





