Calder Court, Stirling, FK7

- PROPERTY TYPE
Terraced
- BEDROOMS
3
- BATHROOMS
1
- SIZE
786 sq ft
73 sq m
- TENUREDescribes how you own a property. There are different types of tenure - freehold, leasehold, and commonhold.Read more about tenure in our glossary page.
Freehold
Key features
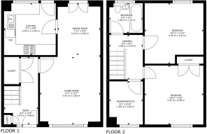
- Two-storey mid-terraced villa in Braehead, Stirling
- Lounge/dining room and kitchen on the ground floor
- Two bedrooms, boxroom, and bathroom on the first floor
- Private front and rear gardens with timber fencing
- Off-street parking within short walking distance
Description
Nestled within Stirling’s sought-after Braehead area, this appealing mid-terraced villa delivers a comfortable and practical layout ideal for modern living. The ground floor opens with a welcoming entrance hall leading into a spacious lounge and dining room, filled with natural light and offering a versatile setting for relaxation or entertaining. The adjoining kitchen sits quietly to the rear, providing direct access to the garden and ample space for everyday cooking and storage needs.
On the first floor, the property continues to impress with a bright landing giving access to two well-proportioned bedrooms, each offering generous storage opportunities. A useful boxroom provides additional versatility, functioning well as a home office, dressing room or compact nursery, while the family bathroom completes the upper level.
Externally, the home benefits from private garden grounds to both the front and rear, fully enclosed by timber fencing to create safe and secure outdoor spaces ideal for families, pets or those who enjoy gardening. Off-street parking is conveniently located just a short walk away, ensuring everyday practicality. With a range of local amenities and facilities close by, this property combines comfort, convenience and a desirable location, making it an excellent choice for a variety of buyers.
EPC Rating: C
- COUNCIL TAXA payment made to your local authority in order to pay for local services like schools, libraries, and refuse collection. The amount you pay depends on the value of the property.Read more about council Tax in our glossary page.
- Ask agent
- PARKINGDetails of how and where vehicles can be parked, and any associated costs.Read more about parking in our glossary page.
- Yes
- GARDENA property has access to an outdoor space, which could be private or shared.
- Yes
- ACCESSIBILITYHow a property has been adapted to meet the needs of vulnerable or disabled individuals.Read more about accessibility in our glossary page.
- Ask agent
Energy performance certificate - ask agent
Calder Court, Stirling, FK7
Add an important place to see how long it'd take to get there from our property listings.
__mins driving to your place
Get an instant, personalised result:
- Show sellers you’re serious
- Secure viewings faster with agents
- No impact on your credit score
Your mortgage
Notes
Staying secure when looking for property
Ensure you're up to date with our latest advice on how to avoid fraud or scams when looking for property online.
Visit our security centre to find out moreDisclaimer - Property reference f0f9f422-540c-4226-a011-29a4cb13e62b. The information displayed about this property comprises a property advertisement. Rightmove.co.uk makes no warranty as to the accuracy or completeness of the advertisement or any linked or associated information, and Rightmove has no control over the content. This property advertisement does not constitute property particulars. The information is provided and maintained by Clyde Property, Stirling. Please contact the selling agent or developer directly to obtain any information which may be available under the terms of The Energy Performance of Buildings (Certificates and Inspections) (England and Wales) Regulations 2007 or the Home Report if in relation to a residential property in Scotland.
*This is the average speed from the provider with the fastest broadband package available at this postcode. The average speed displayed is based on the download speeds of at least 50% of customers at peak time (8pm to 10pm). Fibre/cable services at the postcode are subject to availability and may differ between properties within a postcode. Speeds can be affected by a range of technical and environmental factors. The speed at the property may be lower than that listed above. You can check the estimated speed and confirm availability to a property prior to purchasing on the broadband provider's website. Providers may increase charges. The information is provided and maintained by Decision Technologies Limited. **This is indicative only and based on a 2-person household with multiple devices and simultaneous usage. Broadband performance is affected by multiple factors including number of occupants and devices, simultaneous usage, router range etc. For more information speak to your broadband provider.
Map data ©OpenStreetMap contributors.







