Commercial Properties For Sale in SK (Postcode Area)
A beautiful, particularly private, tree lined building plot extending to approximately 2.5 acres on one of Prestbury's most sought after roads having planning consent to construct a circa 9,000 sq ft house in the Georgian vernacular. Situated on Collar House Drive, occupied primarily by subst...
Welcome to this stunning 6-bedroom farm house located in the picturesque Welsh Row, Nether Alderley. This characterful farmhouse boasts a semi-rural setting, offering the perfect blend of tranquillity and charm. As you step into this detached, gated property, you are greeted by a spaciou...
TO BE SOLD BY ONLINE AUCTION ON 21ST JANUARY 2026 UNLESS SOLD PRIOR UNDER AUCTION TERMS. Albion Mill, London Road, Macclesfield SK11 7QX A rare and highly attractive development opportunity to acquire this imposing Grade II listed former textile mill, built in 18...
Situated on Dialstone Lane in Stockport, this modern semi-detached health centre presents an investment opportunity for discerning buyers. Spanning an impressive 3,386 square feet, the property is currently let to a reputable business that specialises in diagnostic imaging services, including MRI...
Introducing a rare and exceptional investment opportunity in the heart of Buxtons town centre. This impressive commercial property, a converted old mill, is now available for sale, offering a versatile mixed-use space that seamlessly blends historical charm with modern functionality. Situated on ...
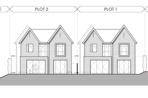
A prime residential development opportunity benefiting from approved planning permission for the construction of two detached houses, each extending to approximately 2,475 sq ft. The site extends to approximately 0.27 acres (0.109 hectares), offering generous plot sizes for high-spec family ho...
Productive Grazing Land in Gawsworth, Cheshire. OIEO £760,000 Meller Speakman are delighted to present to the market a substantial 52.48 Acre block (21.23 Hectares) of productive, agricultural land to the market. Offered in one lot, the Land East of The Harrington Arms provides an excel...
GREAT POTENTIAL FOR REDEVELOPMENT INTO 4 BED DETACHED FAMILY HOME. Bollin View is a well-presented and deceptively spacious two double bedroom detached bungalow, occupying a desirable semi-rural position on the outskirts of Wilmslow. The property enjoys an attractive open aspect to the ...
A rare opportunity to purchase this commercial site currently used as a popular and successful Car Garage along with various buildings and large amount of parking space. The site currently comprises; Building One - a main workshop area with reception, two offices and a showroom with parking to th...
A rare opportunity to create an architect-designed single-storey home set within approximately 2 acres of land at the end of a peaceful country lane. Freyas Folly offers full planning permission, a car barn, and uninterrupted countryside views in one of Cheshire’s most sought-after locations.
This town centre bar, club and apartment block could be a fantastic investment for the right person. Open and thriving, this bar backing on to the river, and could be converted to another form of business subject to the appropriate permissions. The bar has ample seating space w...
TO BE SOLD BY ONLINE AUCTION ON 21ST JAN 2026 UNLESS SOLD PRIOR UNDER AUCTION TERMS. A Unique Development Opportunity – Easton House & The Coach House, 88 High Street, Glossop, SK13 8QA A rare opportunity to acquire arguably the finest property in the heart o...
*** WATCH OUR VIDEO TOUR *** LOT 2 - AGRICULTURAL LAND Approximately 48 acres of grass/agricultural land with own access, which is separate from Lot One. This is a most useful parcel of productive level grassland, with mainly hedged boundaries. There are also two access gate...
A fantastic opportunity to acquire a spacious mixed-use commercial property offering both business premises and residential accommodation. The ground floor features a generous retail/shop space with a large open-plan layout, perfect for a variety of uses. To the rear, you’ll find a convenient kit...


























