Commercial Properties For Sale in Streatham, South West London, 5 property types
Paid partnerships can play a role in listing order
*For sale via secure sale online bidding: terms and conditions apply.* We are pleased to offer to auction this freehold of the subject property. There's is ground rent income coming in which is approximately £7,000+ and also service charge income of £50,000+ coming in from the...
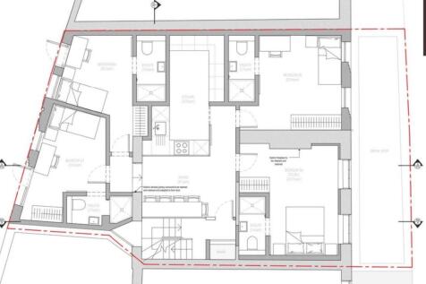
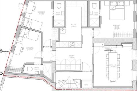
An excellent opportunity to acquire a well-let property in the heart of Streatham, comprising a fully licensed four-bedroom HMO, each with ensuite facilities. The property includes a shared communal kitchen and generates a strong gross income of approximately £51,900 per annum. With modest ...
Landmark Residential | Prime Development Opportunity – Brixton Hill, SW2 Guide Price: £1,300,000 Full Planning Consent Granted | Part Refurbishment & Part New Build | Development-Ready Site An exceptional opportunity to acquire a development site with full planning permission in ...
A opportunity for Developers / Investors to acquire the airspace above 73–79 Knollys Road, London SW16, with planning permission granted for the creation of two high-quality residential flats. Located on a peaceful residential street, this development blends the appeal of a quiet neighbo...







