Land For Sale in Suffolk Coast
Located on one of the most sought after locations in Kessingland, the opportunity has arisen for a self build of a two bedroom one and a half storey dwelling, the restrictions on the planning have been completed by the current owner. Water and electrics connection at the site ready. Viewing is by...
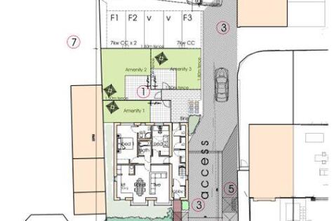
An opportunity to acquire a freehold parcel of land with outline planning for a detached residential apartment scheme comprising 3 x 2-bedroom apartments located in the heart of Felixstowe, just off Hamilton Road
Excellent freehold building plot with full planning permission for the erection of a detached 2 bedroom bungalow with ample car standing space. The property is quietly located just off a private roadway set well back from Elm Tree Road and is within easy travelling distance of Oulton Broad, with...

























