Commercial Properties For Sale in Trevarrick, St. Austell, Cornwall
Paid partnerships can play a role in listing order
Leasehold: £20,000pa Well-appointed restaurant enjoying a prime harbourside location in the picturesque village of Mevagissey Newly refurbished and re-equipped dining area Internal seating for up to 30 covers, with fully equipped kitchen Spacious owners' 3-bedroom accommodation ...
Harbourside Cornish village inn with 5 en-suite letting rooms; Takings £15,000 pw unwarranted with scope for much more; Available immediately - fantastic opportunity; Main bar & Snug bar; Seating 70 in Restaurant area; Well fitted kitchens; Quality two bedroom home with lounge, kitchen & bathroom..
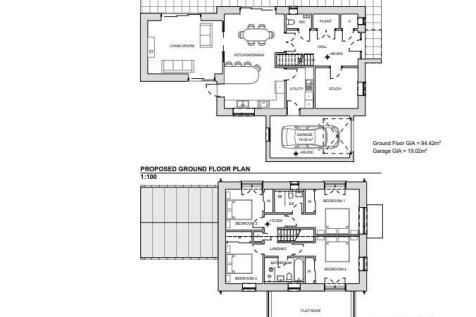
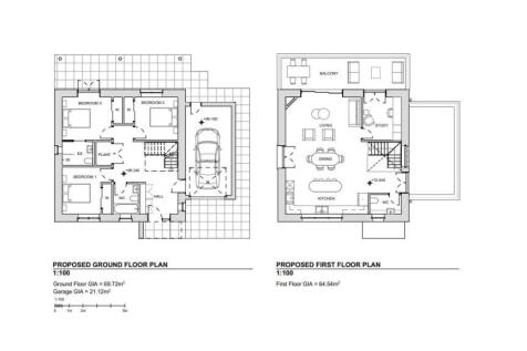
RESIDENTIAL DEVELOPMENT SITE FOR THREE SUBSTANTIAL DETACHED HOUSES In a wonderful and very quiet rural setting within the tiny hamlet of Trevarrick and very close to Gorran Churchtown and the south Cornish coast. Planning permission granted for three impressive detached very mod...
This is an exciting opportunity to acquire a licensed cafe/catering business situated on the Beachfront in the picturesque village of Gorran Haven, on the South Cornish coast. The business has been owned and operated by our clients for several years on a Seasonal basis, with the assistance of ...