Commercial Properties For Sale in SK9
GREAT POTENTIAL FOR REDEVELOPMENT INTO 4 BED DETACHED FAMILY HOME. Bollin View is a well-presented and deceptively spacious two double bedroom detached bungalow, occupying a desirable semi-rural position on the outskirts of Wilmslow. The property enjoys an attractive open aspect to the ...
A rare opportunity to build a contemporary 19,417 sq ft six en suite bedroom family home with leisure suite, sitting in just under 1 acre of landscaped gardens within walking distance of Alderley Edge village. Potential to increase further square footage, subject to necessary planning...
An exceptional plot with scope to renovate or create a design-led home in idyllic countryside, circa 0.6 acres. - Full planning approved for 4,638 sq ft (GEA) project - Countryside views - Contemporary design potential - Award-winning energy efficient design - Priva...
GREAT POTENTIAL FOR REDEVELOPMENT INTO 4 BED DETACHED FAMILY HOME. Bollin View is a well-presented and deceptively spacious two double bedroom detached bungalow, occupying a desirable semi-rural position on the outskirts of Wilmslow. The property enjoys an attractive open aspect to the ...
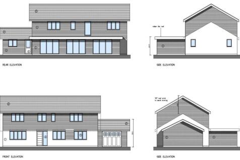
This is a very rare opportunity to acquire a fine residential building plot in the centre of Wilmslow with a current planning permission for a well-proportioned new two storey detached house which will provide approximately 2,066 sq ft ( GIA ) of living space within an attractive and mature setting.

























