Commercial Properties For Sale by GJS Dillon Ltd, Droitwich, including sold STC
90 results
Paid partnerships can play a role in listing order
Ad
Rare freehold opportunity on Harris Business Park 3 Birch House comprises a modern purpose built, end terrace office building arranged over the ground and first floors. The building is of brick construction set beneath a pitched roof. The building is accessed via a two-storey atrium with par...
Ad
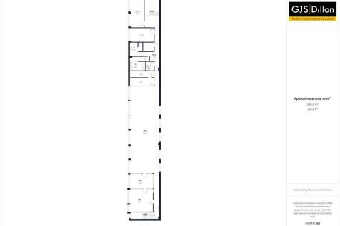
The property is a mid-terraced three storey building of brick main wall construction surmounted by a pitched tiled roof with original sash windows to both the front and rear elevation. To the front of the property there is a hardstanding car parking area suitable for the parking of two vehicles ...
- 1,719 sq ft (159.75 sq m) NIA
- Three storey office premises with cellar
- 2 Designated car parking spaces
Ad
Large freehold office, sold to a growing business Grade A 6,705 sq ft Warehouse with Offices.Purpose built detached warehouse building with two storey office accommodation to the front and warehouse accommodation to the rear.The property benefits from a tarmacadam car parking area to the side o...
Ad
Popular small commercial units with high demand Two modern light industrial/warehouse premises located on Ratio Park Kidderminster. The units are available together or separately, three phase electricity, allocated car parking, roller shutter door and mezzanine flooring.
Under offer (STP) following multiple bids 29,941 sq ft (2,781.8 sq m) GIA Plot size of 1.7 acres which includes a large car park with 140 spaces Situated five miles south of Junctions 2 & 3 of the M42 motorway and 14 miles south of central Redditch Osprey House is a modern detached out of town ...
The accommodation currently provides a mixture of large partitioned working areas with some individual offices. The specification of the property includes; > Air handling / air conditioning > Strip lighting / suspended ceilings with integral lighting > Ground floor kitchen area > 13 person passe...
20 Oxleasow Road is a detached industrial / warehouse property built circa 1980s. The property sits in a 1¼ acre plot and offers good exposure to Oxleasow Road, an accessible area surrounded by similar commercial occupiers. Externally the site has 30 car parking spaces to the front. Accessed se...
Modern warehouse premises with offices situated in a popular West Midlands location. The property extends to 18,185 sq ft (1,689 sq m) GIA. GJS Dillon are offering the effective freehold by way of a 999 long leasehold. Seeking offers in excess of £1,170,000. D4A Coombswood Business Park compris...
The main commercial unit / factory comprises three interconnected industrial units with integral two- storey office accommodation, kitchen and w.c. facilities to the front and a further kitchen and w.c. to the rear unit. The units benefit from three roller shutter doors and a height to eaves of...
Sold to an investor following a successful letting The property is a modern purpose-built office building situated in landscaped grounds with good on-site parking provision. The building is arranged over the basement, ground, first and second floor and is a multi-let investment opportunity.
FREEHOLD SITE / DEVELOPMENT OPPORTUNITY (STP) - Former school site which extends to 1.22 acres. Description: The Finstall Centre comprises a former school building which is arranged over the ground floor only (the property does have a basement however this is inaccessible) and extends to 6,739 s...
The Birches sits within an L shape site that extends to 0.809 acres (3,278 m2) with vehicle access from New Road. There is a two storey L shaped building with a GIA measurement of 7,834 sq ft (727.80 sq m), which we understand was formerly used as a Family Support Centre by Worcestershire County...
Sold to an investor following a successful letting The property is a modern purpose-built office building situated in landscaped grounds with good on-site parking provision. The building is arranged over the ground, first and second floor and extends to 12,885 sq ft (1,197 sq m) NIA.
Sunningdale is a large freehold site situated within 2.72 acres. The site comprises two main sections; residential and commercial. The residential element extends to approximately 2,000 sq ft and comprises a detached dormer bungalow originally built in the 1930s, with an extension added in the 19...
7 Wassage Way comprises a pair of semi-detached warehouse units, current laid out and occupied as one single premises, with associated office accommodation towards the front with an ample on-site car parking provision. The building is of steel portal framed construction with brick and blockwork ...
The site is currently arranged to provide a circa 16,000 sq ft industrial unit that has been sub-divided to currently provide four units. The existing buildings occupy approximately 25% of the site, with the remaining land being level hard standing that is currently used by a car wash operator an...
The current building offers a detached showroom and workshop sitting central within a regular plot. The building is accessed via a showroom to the front and two roller shutter doors to the rear. The existing building offers the following: Car Showroom 2,572 ft2 (239 m2) Workshop 6,552 ft2 (6...
A 6,547 sq ft detached refurbished modern office building prominently positioned on the entrance to the sought after Saxon Business Park in Bromsgrove. Open plan and cellular offices, air conditioning CAT V cabling and 26 onsite car parking spaces. Excellent links to the M5 and M42 motorways.
Units F & G Saxon Business Park units are of part brick-part steel profile clad elevations surmounted by a pitched sheet roof. Units F & G forms an end terrace unit. The units were purpose built as a single unit and are accessed via three pedestrian doors and a roller shutter door with Unit F ...
Superb freehold office sold to an owner occupier A modern 5,470 sq ft two storey office. Internally the property provides a central reception with a mixture of cellular and predominately open plan office space over the ground and first floors. kitchen and WC facilities over both floors and the ...
A 3,971 sq ft former residential premises which has been converted to offices with a rear modern extension. Ideal development opportunity (STP) Cellular office accommodation but the property maintains many original features of a former home.
Description The property comprises three ground floor retail units with four one-bedroom self-contained flats above. The retail units are currently vacant, offering an opportunity to enhance income through asset management initiatives, while the flats are fully let, providing a secure residential...
The most popular types of units in Worcestershire - SOLD Unit A Sorenson House comprises an end-terrace industrial / warehouse premises arranged over the ground floor, with mezzanine accommodation to the front of the premises. Internally, there is accommodation to the front which offers an offic...
Sold to an investor and relet immediately A 6,830 sq ft development opportunity located at the southern end of Bromsgrove High Street . A mid-terrace property that was formerly occupied by a national restaurant chain. The building is arranged over three floors with frontage to the high street a...