Commercial Properties To Let in PR1
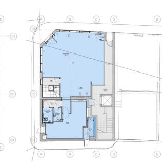
Comprising a large open plan ground floor unit the premises are currently laid out to provide a restaurant and bar area, accommodating approximately 100 covers, together with open kitchen. Preparation and storage areas are located alongside the kitchen as well as a plant room and staff WC. Well ...
The St George's Shopping Centre is located in the heart of Preston city centre. The city of Preston ranks 4th in terms of North West retail town centres behind only Manchester, Liverpool and Chester, dominating the retail offer across the County of Lancashire.
- Business space / Office accommodation set over ground, first and second floor, comprising part storage also. - Could be utilised for a variety of different uses (subject to landlord and planning consent) - Located in Preston centre opposite UCLan (University of Central Lancashire) - Total area:...
The St George's Shopping Centre is located in the heart of Preston city centre. The city of Preston ranks 4th in terms of North West retail town centres behind only Manchester, Liverpool and Chester, dominating the retail offer across the County of Lancashire.
The premises comprise a prominently situated, mid-terraced, three storey retail unit of traditional brickwork construction being rendered and painted to the front elevation.The property offers extensive retail sales accommodation on the ground floor. The building is utilised by the existing t...
Final chance to secure a 1,750 or 3300 sq ft refurbished unit in a prime area. Nearly new condition with full 3-phase power, designed to suit a variety of uses. With most units pre-let, this is an excellent opportunity for small or medium businesses seeking quality space.
The property forms a two-storey brick building beneath a duo-pitched slate tile roof cover. Internally it provides offices over two floors with a reception, staff kitchen, WC's and both open plan and cellular offices to the ground floor and open plan offices to the first floor with four partitio...
Marshall House is a landmark office block in the heart of Preston city Centre. The nine-storey Marshall House on The Ringway occupies a prime central location and features over 26,000 sq. ft of high quality office accommodation. In recent years the building was uplifted with full external claddi...
The subject premises comprise a three-storey mid-terraced property of conventional brickwork construction beneath a pitched slate roof covering which has been extended to the rear at both ground and first floor levels . The ground floor benefits from a metal framed single glazed shopfront and ent...
MODERN OFFICE suite located at The Chambers in Preston City Centre on Guildhall Street. The area is a WELL-ESTABLISHED office location. The location provides EXCELLENT TRANSPORT LINKS with the A6/A59 bypass offering direct access to the motorway network.
The St George's Shopping Centre is located in the heart of Preston city centre. The city of Preston ranks 4th in terms of North West retail town centres behind only Manchester, Liverpool and Chester, dominating the retail offer across the County of Lancashire.
The St George's Shopping Centre is located in the heart of Preston city centre. The city of Preston ranks 4th in terms of North West retail town centres behind only Manchester, Liverpool and Chester, dominating the retail offer across the County of Lancashire.
These all-inclusive offices / studio suites provide a range of accommodation and are currently let to both new and established businesses. Offices from £607 per month, coworking from £19.99 per day, virtual office services from £9.99 per month, boardroom hire £15 per hour. Facilities include: ...
The St George's Shopping Centre is located in the heart of Preston city centre. The city of Preston ranks 4th in terms of North West retail town centres behind only Manchester, Liverpool and Chester,dominating the retail offer across the County of Lancashire.
The St George's Shopping Centre is located in the heart of Preston city centre. The city of Preston ranks 4th in terms of North West retail town centres behind only Manchester, Liverpool and Chester, dominating the retail offer across the County of Lancashire.
****Now just £21,600 50% OFF YOUR 1st YEAR & 25% OFF YOUR 2nd YEAR***. Just a 2 minute walk to the busy, Preston Fishergate shopping area, this ground floor unit offers a new tenant an amazing opportunity to stamp their personality into this unit. Alcohol licence granted as well
**NEW RENT OF £21,600 P/A - 50% OFF YEAR 1 & 25% OFF YEAR 2***Just a 2 minute walk to the busy, Preston Fishergate shopping area, this ground floor unit offers a new tenant an amazing opportunity to stamp their personality into this unit. Alcohol licence granted as well with this
The subject provides for a brand new, large commercial ground floor unit with a kitchen to the rear, along with ample storage space in the basement. The unit is provided to a shell finish giving new tenants the flexibility to put their own stamp into the property. Ideal for new or established ...
***NEW RENT - £21,600 PER ANNUM. 50% OFF IN YEAR 1 & 25% OFF IN YEAR 2.***Just a 2 minute walk to the busy, Preston Fishergate shopping area, this ground floor unit offers a new tenant an amazing opportunity to stamp their personality into this unit. Alcohol licence granted as well.
This is a brand new, large commercial premises in the heart of Preston. With a kitchen at the rear, along with great storage space in the basement area, our Cannon Street commercial unit comes as a core and shell lease agreement, giving new tenants the flexibility to stamp their own imagination i...
The St George's Shopping Centre is located in the heart of Preston city centre. The city of Preston ranks 4th in terms of North West retail town centres behind only Manchester, Liverpool and Chester, dominating the retail offer across the County of Lancashire.
Duxburys Commercial are pleased to offer for rent these fully furnished offices within Derby House. The all-inclusive rent includes the following: Utilities, facilities management and building insurance Dedicated on-site customer service team Meeting Room Hire (8 hours free per month) Offi...









