Commercial Properties To Let in Rudmore, Portsmouth, Hampshire
Paid partnerships can play a role in listing order
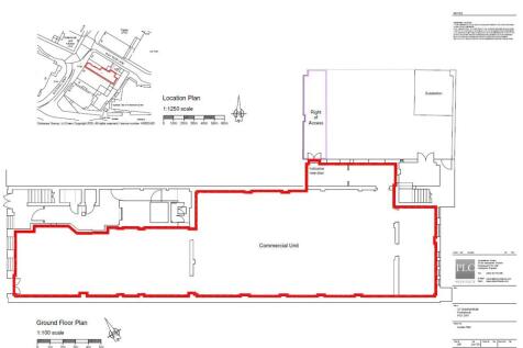
- Situated in established retail and residential location
- Open plan floor space
- Class E encompasses A1, A2, A3, B1 and some D1 and D2 uses
- Well-established retail destination within a densely populated suburban district
- High footfall location
- Open plan retail space
The subject property comprises a self-contained retail unit arranged over two floors. The ground floor provides an open-plan retail trading area, whilst the upper floors offer ancillary accommodation, including storage and staff welfare facilities.
- Predominant shopping centre in Portsmouth City Centre anchored by Primark, H&M, Next and Sports Direct
- Serviced by in excess of 1,000 adjacent car parking spaces
- 28,280 students at University of Portsmouth
- Predominant shopping centre in Portsmouth City Centre anchored by Primark, H&M, Next and Sports Direct
- Serviced by in excess of 1,000 adjacent car parking spaces
- 28,280 students at University of Portsmouth
Norman House comprises a modern four-storey office building, with the subject accommodation situated on the first floor. Access to the premises is provided via a secure fob entry system at ground floor level, with both lift and stair access available to the upper floors. Male and female WC facili...
The subject property comprises a self-contained retail unit arranged over two floors. The ground floor provides an open-plan retail trading area, whilst the upper floors offer ancillary accommodation, including storage and staff welfare facilities.
The accommodation comprises a ground floor restaurant / bar containing approximately 60 covers. To the front of the property are ladies' and gentlemen's WC's and to the rear is a fully fitted trade kitchen. Further space available at basement level, subject to terms.

