
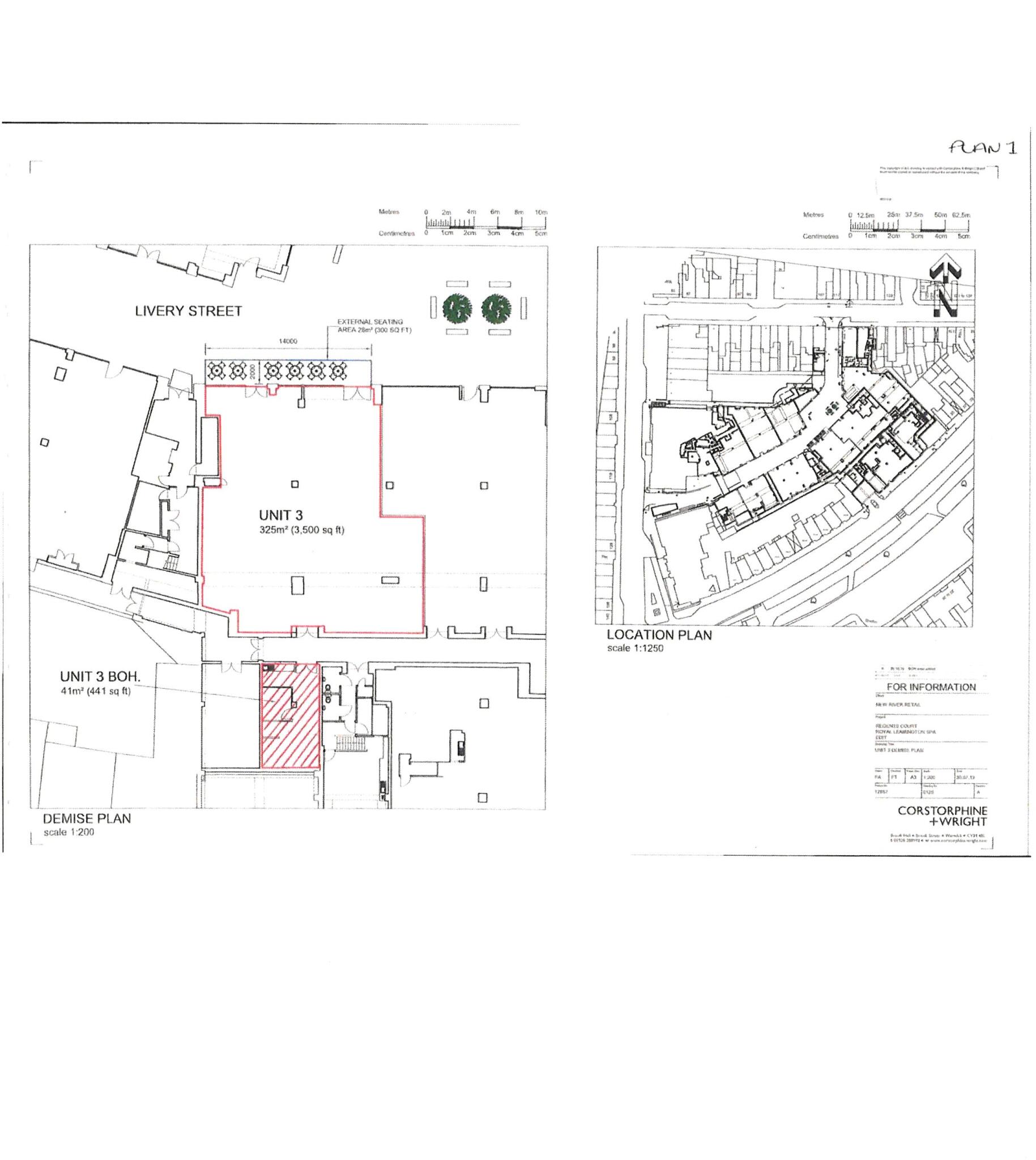
Former Cote Restaurant, Unit 3, 8 Livery Street, Regent Court, Leamington Spa, CV32 4NG
£75,000
18 of 19
SKM_C257i .jpg

£75,000

SKM_C257i .jpg
Copyright © 2000-2025 Rightmove Group Limited. All rights reserved. Rightmove prohibits the scraping of its content. You can find further details here.