The Gatekeeper, Canterbury Road, Etchinghill, Folkestone, CT18 8DE
Size
Ask agent
Tenure
Freehold
EPC
Parking
Ask agent
- Primary use
- Pub
Key features
- Historic Grade II Listed pub/restaurant
- Exposed beams & Inglenook fireplaces
- Generous 3-bedroom owner's accommodation
- 60 cover restaurant 20 car customer car park
- Operating Profit In Excess of £99,000
- 70 cover trade garden. Energy Rating C
- Christie & Co Ref: 8856072
Description
This historic Grade II Listed pub is one of the oldest buildings in the village dating back to 1595 and provides a cosy and relaxing atmosphere. The Gatekeeper was previously called the New Inn and originally consisted of two 15th Century cottages. The building was converted to a pub in the 18th Century.
LocationSet in the Kent Downs, an area of outstanding natural beauty, the rural village of Etchinghill stands at the head of the beautiful Elham Valley.
Etchinghill itself has a highly regarded golf course and offers easy access to the nearby village of Lyminge. Hythe and the larger town of Folkestone are to the South (approximately 3.5 and 5 miles respectively) and to the North, the Cathedral City Of Canterbury (approximately 13 miles).
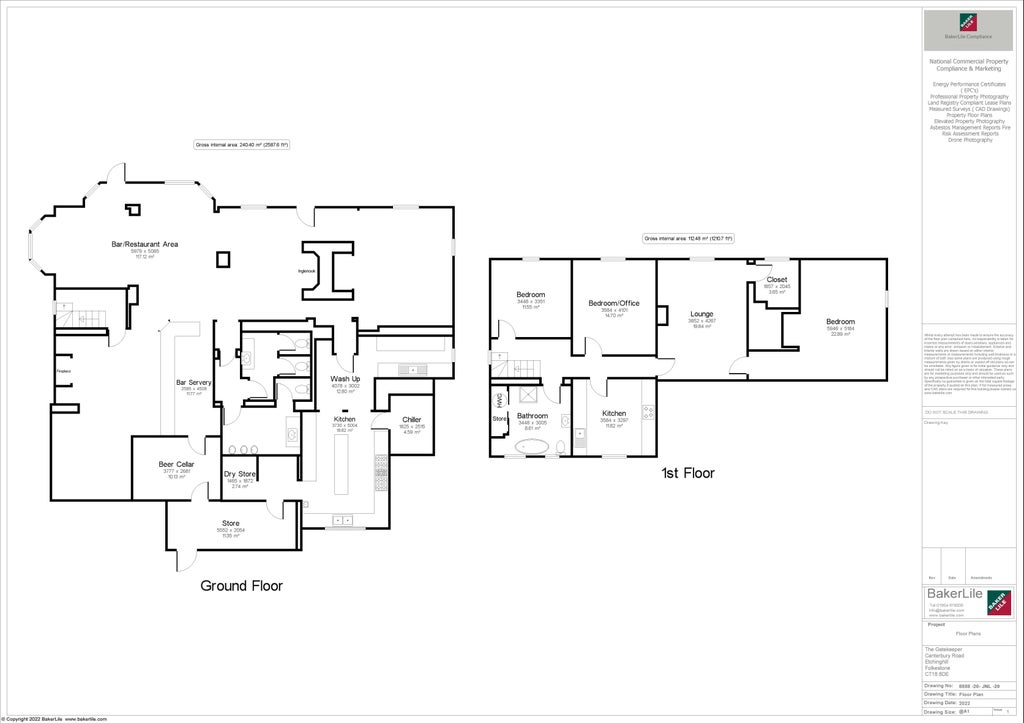
Ground floor entrance into the main bar area with central bar servery, circa 60 cover restaurant, customer toilets, fully equipped commercial kitchen with full extraction, pot wash area, walk-in chiller and dry storage areas. Beer cellar.
Fixtures & FittingsAll trade fixtures and fittings will be included in the sale and our clients will provide a trade inventory.
External DetailsThere is a customer car park for 20 cars and a 70 cover trade garden.
Owner's AccommodationThree double bedrooms, lounge, fitted kitchen and bathroom.
The OpportunityOur clients have lovingly owned the pub for many years and are now looking to retire. The sale offers a great opportunity for a new operator to take full advantage of The Gatekeeper's great reputation and location with the captive audience of Canterbury, Ashford, Folkestone and Dover.
We thoroughly recommend a viewing to fully appreciate this opportunity.
The business is predominantly owner run with a complement of full time and part time casual staff.
Trading InformationJanuary 2024 To October 2024 Turnover £593,567 Gross Profit £353,202 Operating Profit £99,903
Business RatesCurrent rateable value (1 April 2023 to present) is £23,900. This is the rateable value for the property. It is not what you pay in business rates or rent. Your local council uses the rateable value to calculate the business rates bill.
RegulatoryPremises Licence.
- Service charge
- Ask agent
- Business rates
- Ask agent
- Use class
- Ask agent
- Listed building
- No
- Business for sale
- Yes
An Energy Performance certificate helps you understand the current energy efficiency of a property.
Read more about EPC requirementsAsk agent
- BREEAM rating
- Ask agent
- Environmental description
- Ask agent
The Gatekeeper, Canterbury Road, Etchinghill, Folkestone, CT18 8DE
We’re the leading specialist advisor for buying and selling businesses in our sectors - hotels, pubs, restaurants, childcare, healthcare, convenience retail, leisure and medical.
If you’re looking to buy or sell a business in our specialist sectors – from a pharmacy in Sussex to a hotel in Austria – our expert advice and collaborative support will help you achieve your goals. You may be an independent first-time buyer or a multinational adding to your portfolio; either way, you’ll discover that our personalised service is focused on helping you achieve your ambitions.
Clients have access to our carefully managed network of potential buyers. This unique database of contacts has been continually developed by our advanced IT capabilities and benefits from both our years of experience developing our network and our wide geographical coverage.
Where we work
We employ the largest team of sector specialists in the UK and the largest group of hotel specialists in Europe, providing professional brokerage and advisory services from offices in major cities across Britain and Europe. And because we’ve been doing this for over 80 years, we know our sectors and local markets inside out. We work closely with our clients to guide and conclude transactions of any size, covering hotels, restaurants and pubs, leisure, forecourts and convenience retail businesses, social care and elderly care, childcare & education facilities, dental practices and pharmacies.
Our professional services
We offer unrivalled insight, experience and expertise across your choice of services, including brokerage, consultancy, finance, development, investment, surveying, rent reviews, dispute resolution, corporate valuation, and turnaround & recovery. These services are all underpinned by our in-depth market intelligence and leading-edge technology. And we’re accredited by the Royal Institution of Chartered Surveyors (RICS), so you can trust in our professionalism.
What makes us tick
Businesses are about people, so relationships matter to us. We bring an integrity and transparency to business which can be all too rare – and that’s why people trust us. Our clients will attest to our genuine desire to help achieve their objectives, our attention to detail, and our tireless hard work on their behalf. We understand that buying a business can bring its own pressures and strains; needs can change, plans may need to be adjusted, and opportunities can come and go. But we’re always here, a constant, flexible and reliable force you can count on.
Our opening hours for all offices:
Mon – Fri, 9am – 5.30pm
Your search history
You have no recent searches
Disclaimer - Property reference 8856072-fh. The information displayed about this property comprises a property advertisement. Rightmove.co.uk makes no warranty as to the accuracy or completeness of the advertisement or any linked or associated information, and Rightmove has no control over the content. This property advertisement does not constitute property particulars. The information is provided and maintained by Christie & Co, Pubs & Restaurants. Please contact the selling agent or developer directly to obtain any information which may be available under the terms of The Energy Performance of Buildings (Certificates and Inspections) (England and Wales) Regulations 2007 or the Home Report if in relation to a residential property in Scotland.




























