Coach & Horses, The Square, Compton, Chichester, PO18 9HA
Size
Ask agent
Tenure
Leasehold
EPC
Parking
Ask agent
- Primary use
- Pub
Key features
- Fully refurbished and trading ground floor
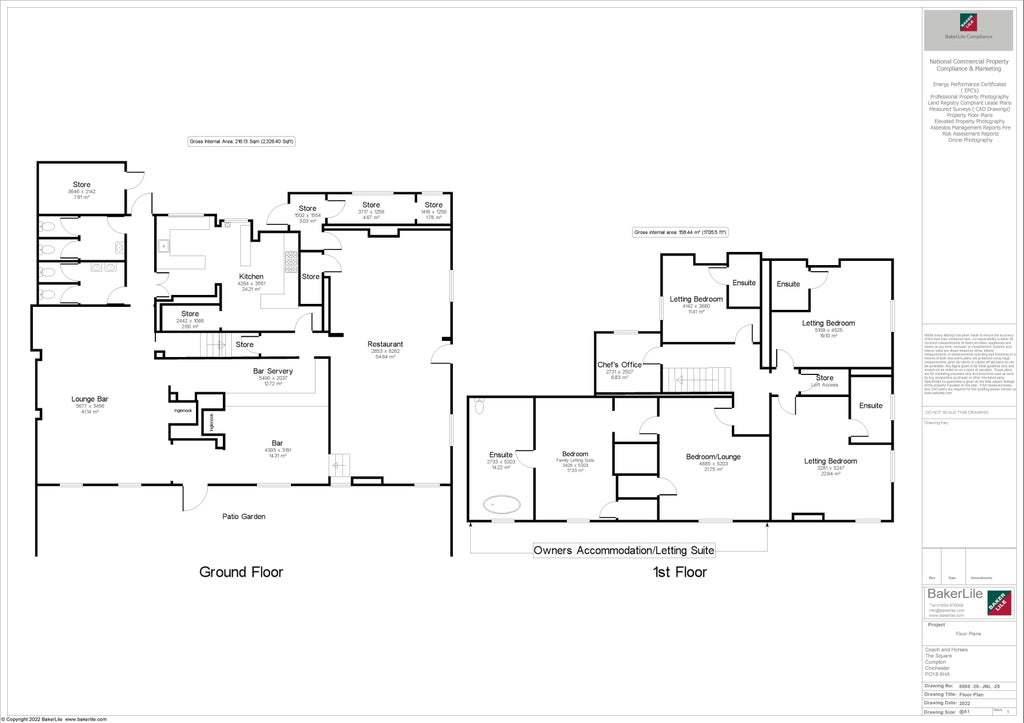
- Main bar & dining room (c.70), GIA: 374 sq m
- Potential for three Letting rooms
- External seating to front (c.54)
- Two Bedroom owners/management accommodation
- Alternative uses will be considered (STPP), EPC:B
- Annual rent: £35,000
- Christie & Co Ref: 3858244
Description
The property is a Grade II Listed character detached building, under a pitched clay tile roof briefly comprising 70 internal covers, three letting rooms and two bedroom owner's accommodation.
The pub was purchased by the owners in November 2022 and is under going refurbishment by an award winning interior designer.
The owners have a wealth of experience in construction and design which has led to the pub currently undergoing refurbishment to the highest level and as always was their intention the owners wish to create an investment by sourcing an experienced publican to take over the pub.
This is therefore a rare opportunity to acquire a pub with the restaurant, bar & WC's having been completed to a high standard. Works are ongoing on the letting rooms and owners accommodation and will be subject to completion by the ingoing lessee.
The property is Ideal for both owner operators looking to run the pub whilst living in the spacious two bedroom owners accommodation, or those looking to run the business under management maximising the letting accommodation.
Coach & Horses Website.
Gross internal floor area (GIA) - 374 sqm.
The Coach & Horses occupies a prominent central location in the affluent village of Compton in West Sussex, surrounded by residential properties, a village shop and local primary school.
The village is easily accessible, located less than ten miles from the A3 which provides access to Portsmouth (15 miles), Petersfield (9 miles) and the A27 providing access to Chichester (10 miles).
The ground floor comprises the main bar and snug (c.30), restaurant (c.40), commercial kitchen and pot-wash, beer cellar and two sets of ladies and gentlemen's WCs.
Fixtures & FittingsFixtures and fittings are to be leased to the incoming tenant, except for some personal effects which will be retained. An inventory will be provided to prospective purchasers once an offer has been accepted.
ServicesLPG gas. All other services are connected to the mains.
Letting AccommodationThree en suite letting rooms arranged over the first floor currently undergoing refurbishment. Once complete are expected to achieve a room rate between £120 - £160 per night with special rates applying to various local events throughout the year including Goodwood.
External DetailsPavement seating (c.54) and street parking throughout the village. The rear courtyard is currently only being used by the owners.
Owner's AccommodationTwo bedroom owner's accommodation is arranged over the first floor undergoing refurbishment comprising two double bedrooms with a bathroom, a living room, and an office area.
StaffThe business is currently being run by the owners, but would be suited to a head chef, part time KP and waiting/bar staff, to be managed by the new Lessee.
Trading InformationThe pub is currently closed and no historic trading information is available.
Trading HoursCurrently Closed.
Licence is available for trading until midnight on most days.
The property is being offered on a new 10 year free of tie lease with five yearly rent reviews with an annual rent of £35,000. A rental deposit will be required subject to status and rent to be paid quarterly in advance.
All interested parties must provide proof of funding prior to arranging a viewing and confirm their willingness and ability to undertake the fit of the 1st floor letting rooms and owners accommodation.
Freehold: Offers Invited.
All alternative uses will be considered (STPP)
Rateable value effective from 1 April 2023 is £3,650.
RegulatoryThe property benefits from a Premises Licence and is free of tie.
- Service charge
- Ask agent
- Business rates
- Ask agent
- Use class
- Ask agent
- Listed building
- No
- Business for sale
- Yes
- Tenure
- Leasehold
- Length of lease
- Ask agent
An Energy Performance certificate helps you understand the current energy efficiency of a property.
Read more about EPC requirementsAsk agent
- BREEAM rating
- Ask agent
- Environmental description
- Ask agent
Coach & Horses, The Square, Compton, Chichester, PO18 9HA
We’re the leading specialist advisor for buying and selling businesses in our sectors - hotels, pubs, restaurants, childcare, healthcare, convenience retail, leisure and medical.
If you’re looking to buy or sell a business in our specialist sectors – from a pharmacy in Sussex to a hotel in Austria – our expert advice and collaborative support will help you achieve your goals. You may be an independent first-time buyer or a multinational adding to your portfolio; either way, you’ll discover that our personalised service is focused on helping you achieve your ambitions.
Clients have access to our carefully managed network of potential buyers. This unique database of contacts has been continually developed by our advanced IT capabilities and benefits from both our years of experience developing our network and our wide geographical coverage.
Where we work
We employ the largest team of sector specialists in the UK and the largest group of hotel specialists in Europe, providing professional brokerage and advisory services from offices in major cities across Britain and Europe. And because we’ve been doing this for over 80 years, we know our sectors and local markets inside out. We work closely with our clients to guide and conclude transactions of any size, covering hotels, restaurants and pubs, leisure, forecourts and convenience retail businesses, social care and elderly care, childcare & education facilities, dental practices and pharmacies.
Our professional services
We offer unrivalled insight, experience and expertise across your choice of services, including brokerage, consultancy, finance, development, investment, surveying, rent reviews, dispute resolution, corporate valuation, and turnaround & recovery. These services are all underpinned by our in-depth market intelligence and leading-edge technology. And we’re accredited by the Royal Institution of Chartered Surveyors (RICS), so you can trust in our professionalism.
What makes us tick
Businesses are about people, so relationships matter to us. We bring an integrity and transparency to business which can be all too rare – and that’s why people trust us. Our clients will attest to our genuine desire to help achieve their objectives, our attention to detail, and our tireless hard work on their behalf. We understand that buying a business can bring its own pressures and strains; needs can change, plans may need to be adjusted, and opportunities can come and go. But we’re always here, a constant, flexible and reliable force you can count on.
Our opening hours for all offices:
Mon – Fri, 9am – 5.30pm
Your search history
You have no recent searches
Disclaimer - Property reference 3858244-lh. The information displayed about this property comprises a property advertisement. Rightmove.co.uk makes no warranty as to the accuracy or completeness of the advertisement or any linked or associated information, and Rightmove has no control over the content. This property advertisement does not constitute property particulars. The information is provided and maintained by Christie & Co, Pubs & Restaurants. Please contact the selling agent or developer directly to obtain any information which may be available under the terms of The Energy Performance of Buildings (Certificates and Inspections) (England and Wales) Regulations 2007 or the Home Report if in relation to a residential property in Scotland.






















