First & Second Floor, The Wool Exchange, Hustlergate, Bradford, BD1 1RE
Size
Ask agent
Tenure
Leasehold
EPC
Parking
Ask agent
- Primary use
- Restaurant
Key features
- New lease available
- 20 individual offices/treatment rooms
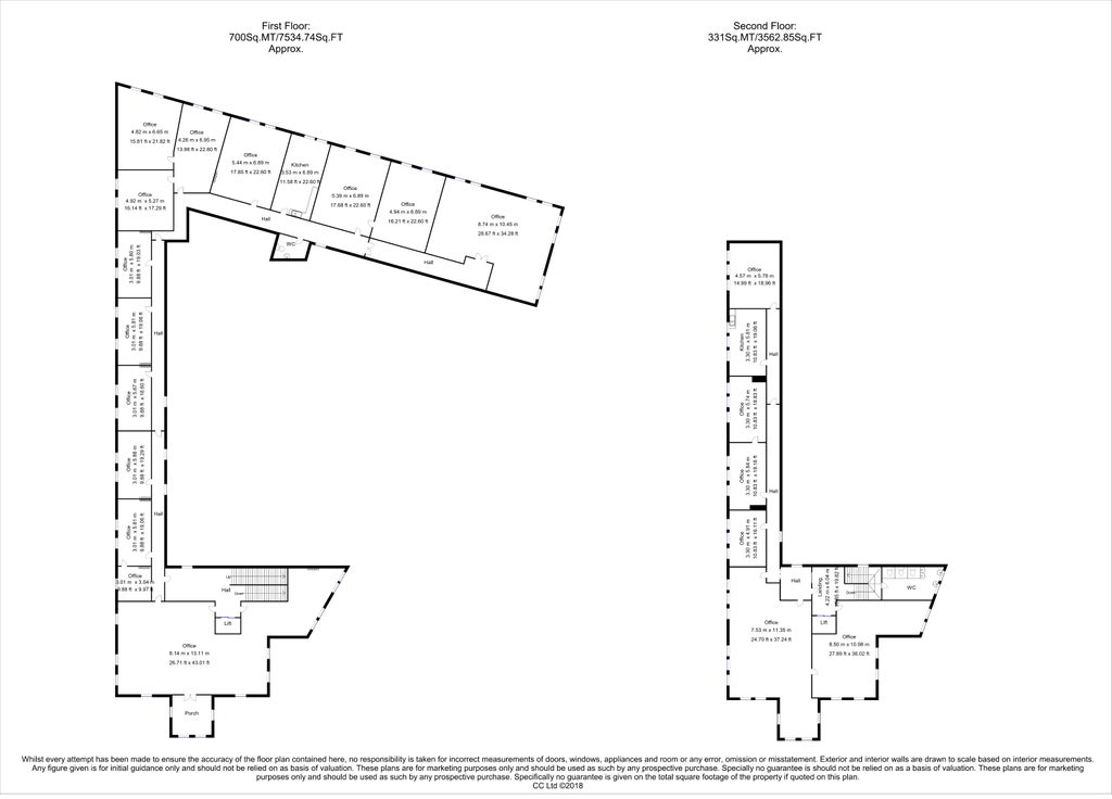
- Approximately 11,000 sq.ft
- City centre location
- Potential for a variety of uses
- Beautiful Grade II Listed building. Exempt from EPC
- Annual rent: £25,000
- Christie & Co Ref: 5469143
Description
The first and second floors of the Wool Exchange offer 20 individual rooms along with a kitchen and toilet facilities. A couple of the rooms are larger and a couple are ideal as reception spaces or larger meeting rooms.
The location is ideal, entering the building off the street to the north of the property next to Waterstones, the building has its own private staircase.
The Grade II Listed Wool Exchange is situated in the historic Bradford City Centre, just outside the Broadway Shopping Centre. It is 0.3 miles from the Bradford Interchange and a short walk (0.2 miles) from the Bradford Puddle in the centre of the city.
Internal DetailsThe first floor comprises of 14 offices, kitchen area, toilet facilities, connecting hallway and lift from the ground floor.
The second floor comprises of six offices, kitchen area, toilet facilities, hallways and lift.
This vacant commercial space is housed within the beautiful Grade II Listed Wool Exchange, located ideally in the centre of Bradford and is suitable for a variety of professions, including a dental surgery, medical practice, offices, or other business uses. It is a large area covering approximately 11,000 sq ft and retains many of the building's period features, such as staircases and windows.
TenancyNew Lease on negotiable terms.
Business RatesConfirmation of business rates payable should be obtained from the local authority.
- Service charge
- Ask agent
- Business rates
- Ask agent
- Use class
- Ask agent
- Listed building
- No
- Business for sale
- Yes
- Tenure
- Leasehold
- Length of lease
- Ask agent
An Energy Performance certificate helps you understand the current energy efficiency of a property.
Read more about EPC requirementsAsk agent
- BREEAM rating
- Ask agent
- Environmental description
- Ask agent
Brochure
First & Second Floor, The Wool Exchange, Hustlergate, Bradford, BD1 1RE
We’re the leading specialist advisor for buying and selling businesses in our sectors - hotels, pubs, restaurants, childcare, healthcare, convenience retail, leisure and medical.
If you’re looking to buy or sell a business in our specialist sectors – from a pharmacy in Sussex to a hotel in Austria – our expert advice and collaborative support will help you achieve your goals. You may be an independent first-time buyer or a multinational adding to your portfolio; either way, you’ll discover that our personalised service is focused on helping you achieve your ambitions.
Clients have access to our carefully managed network of potential buyers. This unique database of contacts has been continually developed by our advanced IT capabilities and benefits from both our years of experience developing our network and our wide geographical coverage.
Where we work
We employ the largest team of sector specialists in the UK and the largest group of hotel specialists in Europe, providing professional brokerage and advisory services from offices in major cities across Britain and Europe. And because we’ve been doing this for over 80 years, we know our sectors and local markets inside out. We work closely with our clients to guide and conclude transactions of any size, covering hotels, restaurants and pubs, leisure, forecourts and convenience retail businesses, social care and elderly care, childcare & education facilities, dental practices and pharmacies.
Our professional services
We offer unrivalled insight, experience and expertise across your choice of services, including brokerage, consultancy, finance, development, investment, surveying, rent reviews, dispute resolution, corporate valuation, and turnaround & recovery. These services are all underpinned by our in-depth market intelligence and leading-edge technology. And we’re accredited by the Royal Institution of Chartered Surveyors (RICS), so you can trust in our professionalism.
What makes us tick
Businesses are about people, so relationships matter to us. We bring an integrity and transparency to business which can be all too rare – and that’s why people trust us. Our clients will attest to our genuine desire to help achieve their objectives, our attention to detail, and our tireless hard work on their behalf. We understand that buying a business can bring its own pressures and strains; needs can change, plans may need to be adjusted, and opportunities can come and go. But we’re always here, a constant, flexible and reliable force you can count on.
Our opening hours for all offices:
Mon – Fri, 9am – 5.30pm
Your search history
You have no recent searches
Disclaimer - Property reference 5469143-lh. The information displayed about this property comprises a property advertisement. Rightmove.co.uk makes no warranty as to the accuracy or completeness of the advertisement or any linked or associated information, and Rightmove has no control over the content. This property advertisement does not constitute property particulars. The information is provided and maintained by Christie Owen & Davies Ltd, Pubs & Restaurants. Please contact the selling agent or developer directly to obtain any information which may be available under the terms of The Energy Performance of Buildings (Certificates and Inspections) (England and Wales) Regulations 2007 or the Home Report if in relation to a residential property in Scotland.















