City Road, Sheffield, S12
Letting details
- Let available date:
- Now
- Let type:
- Long term
- PROPERTY TYPE
Shop
- BATHROOMS
1
- SIZE
1,647 sq ft
153 sq m
Key features
- AVAILABLE NOW
- £1200 PER CALENDAR MONTH
- 2 FLOORS
- LARGE SHOP FRONT WINDOWS
- ELECTRIC SHUTTERS
- A1/A2 LICENSE
- EASY ACCESS INTO THE CITY CENTRE
- GREAT LOCATION
Description
**£1200 PER CALENDAR MONTH**
**APPROX 153 SQM** **A1/A2 LICENSE** Commercial premises including upstairs located on City Road with easy access to main transport links. Within an array of shops & local amenities.
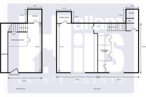
Ground Floor:
The premises comprises of the main shop front and large display front window with security electric shutters. There is a side corridor and side entrance under the staircase at the back. Small kitchen area at the rear.
Main shop floor: 4.5M x 9.25M
Kitchen area: 2.73M x 2.5M
Total: 48.5 SQM
First Floor:
Up the stairs to the left is a 52.1 SQM room with partitioned rooms to one side which can be taken down. Small kitchen and WC area to the rear.
Opposite the stairs is a door entrance to another room which is 52.2 SQM with a small room to the rear
Shop floor 1: 4.9M x 9.25M
Kitchen & WC: 2.75M x 2.5M
Total: 52.2 SQM
Shop floor 2: 4.9M x 9.3M
Room: 2.6M x 2.6M
Total: 52.33 SQM
Water
Electrics
WC
2 Kitchen/ utility areas
Location
Located on City Road with easy access to main transport links. Within an array of shops & local amenities.
Lease:
The premise is offered to let on a new lease on terms to be agreed upon.
VIEWING ARRANGEMENTS
Please do not hesitate to contact our commercial department for more information or would like to arrange a viewing.
Monday to Friday 10:00am - 6:00pm
Hallam Hills Ltd
1. St Marys House
9-11 London Rd,
Sheffield
S2 4LA
City Road, Sheffield, S12
NEAREST STATIONS
Distances are straight line measurements from the centre of the postcode- Manor Top/Elm Tree Tram Stop0.1 miles
- Hollinsend Tram Stop0.6 miles
- Spring Lane Tram Stop0.6 miles
Notes
Disclaimer - Property reference 757_City_Road_commercial. The information displayed about this property comprises a property advertisement. Rightmove.co.uk makes no warranty as to the accuracy or completeness of the advertisement or any linked or associated information, and Rightmove has no control over the content. This property advertisement does not constitute property particulars. The information is provided and maintained by Hallam Hills ltd, Sheffield. Please contact the selling agent or developer directly to obtain any information which may be available under the terms of The Energy Performance of Buildings (Certificates and Inspections) (England and Wales) Regulations 2007 or the Home Report if in relation to a residential property in Scotland.
Map data ©OpenStreetMap contributors.





