
Norwich Road, Barham, Ipswich, Suffolk, IP6
- PROPERTY TYPE
Plot
- BEDROOMS
4
- SIZE
Ask agent
Key features
- DOUBLE BUILDING PLOT WITH FULL PLANNING FOR TWO DETACHED DWELLINGS
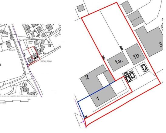
- PLOT DIMENSIONS APPROX. 61M X 19M
- SECLUDED GARDENS & OFF ROAD PARKING
- EDGE OF VILLAGE LOCATION
- EASY ACCESS TO IPSWICH & THE A14
- MID SUFFOLK PLANNING APPLICATION NO. DC/22/00577
Description
The plot is located on the edge of the sought after village of Barham. The villages of Barham and Claydon are as one and offer a range of shops including post office, pharmacy, hairdressers, public houses and primary and secondary schooling. The Suffolk county town of Ipswich is approximately three miles distant offering a much wider range of facilities including mainline railway link to London's Liverpool Street. The A14 trunk road offers access in an easterly direction to the A12 and Felixstowe and in a westerly direction
to Bury St Edmunds, Cambridge and on to the Midlands.
This rarely available double village building plot is formed by severance of garden land from the adjacent property known as Hall Farm Cottages. The plot dimensions are approximately 61M x 19M. Full planning permission has been granted for the erection of two no. two storey dwellings with floorplans comprising entrance hall, ground floor cloakroom, open plan living room/ dining room and kitchen, on the first floors generous landing gives access to two double bedrooms and bathroom. Externally the plots offer secluded gardens and off road parking. Mid Suffolk planning application reference DC/22/00577.
POSTCODE: IP6 0PA
VIEWING:
By arrangement with the agents, Hamilton Smith, , or email us at
You can also visit our web site
Norwich Road, Barham, Ipswich, Suffolk, IP6
NEAREST STATIONS
Distances are straight line measurements from the centre of the postcode- Needham Market Station3.1 miles
- Westerfield Station3.7 miles
- Ipswich Station5.0 miles
Notes
Disclaimer - Property reference 3807. The information displayed about this property comprises a property advertisement. Rightmove.co.uk makes no warranty as to the accuracy or completeness of the advertisement or any linked or associated information, and Rightmove has no control over the content. This property advertisement does not constitute property particulars. The information is provided and maintained by Hamilton Smith, Claydon. Please contact the selling agent or developer directly to obtain any information which may be available under the terms of The Energy Performance of Buildings (Certificates and Inspections) (England and Wales) Regulations 2007 or the Home Report if in relation to a residential property in Scotland.
Map data ©OpenStreetMap contributors.









