Holmbush Road, St Austell, St Austell, PL25
- PROPERTY TYPE
Plot
- SIZE
Ask agent
Description
PLANNING
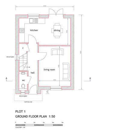
Cornwall Council approved planning application PA24/09824 on 24th December 2024 giving outline planning permission for the development of two new dwellings and formation of parking at 104 Holmbush Road, St Austell. Copies of the planning approval notices and associated plans and documents are available from the Agents upon request.
S106/CIL
The Agents are advised that there are no outstanding S106 liabilities associated with the approved consent, and although the proposed development is CIL liable, it is located within Cornwall Charging Area 5 which has a £0/sqm liability.
Services
Purchasers please note relevant services should be confirmed by the utility companies.
Brochures
Brochure 1Holmbush Road, St Austell, St Austell, PL25
NEAREST STATIONS
Distances are straight line measurements from the centre of the postcode- St. Austell Station1.5 miles
- Par Station2.6 miles
- Luxulyan Station3.5 miles
Notes
Disclaimer - Property reference 25895510. The information displayed about this property comprises a property advertisement. Rightmove.co.uk makes no warranty as to the accuracy or completeness of the advertisement or any linked or associated information, and Rightmove has no control over the content. This property advertisement does not constitute property particulars. The information is provided and maintained by Liddicoat & Company, St Austell. Please contact the selling agent or developer directly to obtain any information which may be available under the terms of The Energy Performance of Buildings (Certificates and Inspections) (England and Wales) Regulations 2007 or the Home Report if in relation to a residential property in Scotland.
Map data ©OpenStreetMap contributors.








