New Beezon Chambers, Sandes Avenue, Kendal, Cumbria LA9 6BL
- SIZE AVAILABLE
993-2,191 sq ft
92-204 sq m
- SECTOR
Office to lease
Lease details
- Lease available date:
- Ask agent
Key features
- Town centre offices with basement car parking and storage
- High profile position on the A6 Sandes Avenue
- Close to local amenities
- Suite A - 1,044 sq ft, available at a rental of £12,000 per annum exclusive.
- Suite B - 1,147 sq ft, available at a rental of £10,000 per annum exclusive.
- Each Suite qualifies for 100% small business rate relief
- Rental as a whole - £20,000 per annum exclusive.
Description
Beezon Chambers occupy a high-profile position at the junction of the A6 Sandes Avenue and Beezon Road, sitting immediately adjacent to Lidl supermarket as well as a pay and display/permit contract car park. The heart of Kendal town centre, the main bus station and local train station are all within a five-minute walk.
Kendal is the principal town of South Lakeland and is situated just outside of the southern boundaries of the Lake District National Park, only 6 miles from Junctions 36 and 37 of the M6 Motorway. The town has a resident population of 29,495 (2011 Census) and is a popular tourist destination being 10 miles south of Windermere and the gateway to the Lakes which has recently gained World Heritage status. The town has a weighted retail catchment in excess of 50,000 people and a greater district catchment in excess of 102,000. The district's Class Grouping indicates that in excess of 50% of the catchment area is of A, B or C demographic.
Oxenholme Train Station which is situated on the West Coast main railway line is located 3 miles to the south-east providing direct services to London (approximate journey time 2 hours 50 minutes) and Glasgow (1 hour 45 minutes). There is a local connection to Oxenholme from the nearby Kendal Station which also travels to Windermere.
Beezon Road connects to Wildman Street, which is one of the main routes travelling into Kendal from the North and the A6 Sandes Avenue/Station Road provide direct access into the town centre as well as to the A5284 Windermere Road which in turn connects with the A591 to Windermere and Junction 36 of the M6. Station Road leads up to Shap Road and a number of the main commercial and out-of-town retail estates.
On foot, the town centre is a short walk over Stramongate or Victoria bridges being circa five minutes away and the central bus station and Kendal Train Station are also only a few minutes' walk away. Nearby occupiers include Kendal College, The Riverside Hotel, Lidl, Beezon Trading Estate as well as Bridge Mills on Stramongate.
The attached plan shows the location of the premises (for identification purposes only).
DESCRIPTION
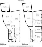
The premises comprise a two-storey (plus basement) imposing stone building, occupying a corner plot, arranged over two floors with a pedestrian entrance on the west elevation and a self-contained basement car park/store with vehicle access taken from Sandes Avenue to the north elevation.
Suite A forms the ground floor of the property and provides a reception, cellular offices, meeting room, kitchen and a disabled WC.
Suite B is situated at first floor and comprises cellular offices and male and female WCs.
The accommodation is generally fitted out with carpeted flooring, plaster painted walls and ceiling, panel and strip LED lighting, wall mounted radiators and timber framed double glazed windows.
The basement garage/stores have two separate electric roller shutter entrances, lighting and provide room for around 3/4 vehicles.
ACCOMMODATION
The offices extend to the following approximate net internal areas:
Ground Floor 96.99m2 (1,044 sq ft)
First Floor 106.56m2 (1,147 sq ft)
Total 203.54m2 (2,191 sq ft)
The basement provides the following approximate gross internal areas:
Basement Total 104.12m2 (1,121 sq ft)
SERVICES
The premises are connected to mains electricity, gas, water and the mains drainage system. Heating is via a combination boiler that supplies hot water and wall mounted radiators throughout.
RATEABLE VALUE
The ground and first floors are rated separately, with the following assessments as of April 2026:
Suite A (Ground Floor) - £11,000 with approximate rates payable for 2026/27 of £4,752 per annum.
Suite B (First Floor) - £11,500 with approximate rates payable for 2026/27 of £4,968 per annum.
However, qualifies for 100% small business rate relief, subject to meeting relevant criteria.
Prospective tenants should check the exact rates payable with Westmorland & Furness Council.
TERMS
The accommodation is available by way of new leases on terms to be agreed at the following rentals:
Suite A (Ground Floor) - £12,000 per annum exclusive
Suite B (First Floor) - £10,000 per annum exclusive
As a whole - £20,000 per annum exclusive
ENERGY PERFORMANCE CERTIFICATE
The property has an energy efficiency rating of C68, valid until 19 October 2030. A copy of the certificate can be provided upon request.
VAT
The building is registered for VAT and VAT will therefore be payable in addition to the rentals.
LEGAL COSTS
Each party to bear their own legal costs in the preparation and settlement of the lease documentation together with any VAT thereon.
VIEWING
The property is available to view by prior appointment with Edwin Thompson LLP. Contact:
John Haley or Ellie Oakley
IMPORTANT NOTICE
Edwin Thompson for themselves and for the Vendor of this property, whose Agents they are, give notice that:
1. The particulars are set out as a general outline only for the guidance of intending purchasers and do not constitute, nor constitute part of, any offer or contract.
2. All descriptions, dimensions, plans, reference to condition and necessary conditions for use and occupation and other details are given in good faith and are believed to be correct, but any intending purchasers should not rely on them as statements or representations of fact, but must satisfy themselves by inspection or otherwise as to their correctness.
3. No person in the employment of Edwin Thompson has any authority to make or give any representation or warranty whatsoever in relation to this property or these particulars, nor to enter into any contract relating to the property on behalf of the Agents, nor into any contract on behalf of the Vendor.
4. No responsibility can be accepted for loss or expense incurred in viewing the property or in any other way in the event of the property being sold or withdrawn.
5. These particulars were prepared in November 2024.
Brochures
New Beezon Chambers, Sandes Avenue, Kendal, Cumbria LA9 6BL
NEAREST STATIONS
Distances are straight line measurements from the centre of the postcode- Kendal Station0.2 miles
- Burneside Station1.8 miles
- Oxenholme Lake District Station2.1 miles
Notes
Disclaimer - Property reference G1178. The information displayed about this property comprises a property advertisement. Rightmove.co.uk makes no warranty as to the accuracy or completeness of the advertisement or any linked or associated information, and Rightmove has no control over the content. This property advertisement does not constitute property particulars. The information is provided and maintained by EDWIN THOMPSON, Kendal. Please contact the selling agent or developer directly to obtain any information which may be available under the terms of The Energy Performance of Buildings (Certificates and Inspections) (England and Wales) Regulations 2007 or the Home Report if in relation to a residential property in Scotland.
Map data ©OpenStreetMap contributors.






