Unit 42, The Arcades, Warrington Street, Ashton-Under-Lyne, Greater Manchester, OL6
- SIZE AVAILABLE
2,190 sq ft
203 sq m
- SECTOR
Retail property shopping centre to lease
- USE CLASSUse class orders: Class E
E
Lease details
- Lease available date:
- Ask agent
Key features
- Ashton is located approximately 8 miles east of central Manchester
- Population catchment of c. 363,000
- The Arcades Shopping Centre is the prime retail destinatiion Ashton
- Parking for 523 cars
- Links directly to the towns busy bus station
- The scheme is home to The Works, H Samuel, Card Factory and JD
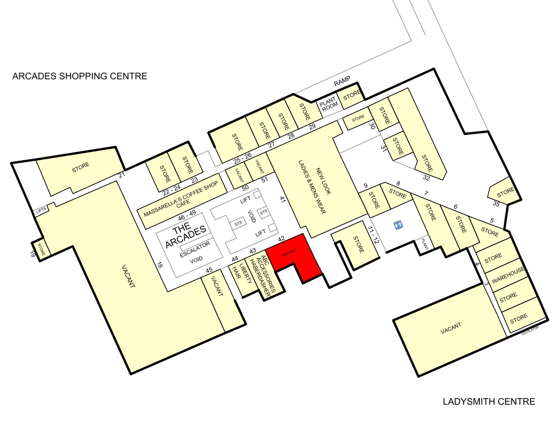
- The subject unit is located at first floor adjacent to the car park entrance
- Ground Floor Sales 2,190 sq.ft
- New FRI lease
- RV £11,250
Description
Ashton-Under-Lyne is located approximately 8 miles east of central Manchester, the town has a population catchment of 363,000 within a ten minute drive.
The Arcades Shopping Centre is the prime retail destination in Ashton town centre, providing parking for 523 cars and linking directly to one of the busiest bus stations in the north west.
The scheme is home to The Works, H Samuel, Card Factory, Superdrug and JD Sports.
The unit is located at first floor, immediately adjacent to the car park entrance and New Look.
ACCOMMODATION
Ground Floor Sales 2,190 sq.ft (203.46 sq.m.)
RENT
Upon application.
TENURE
The units are offered on new 10 year fully repairing and insuring leases, subject to an upwards only rent reviews at the end of year 5.
BUSINESS RATES
The premises currently has a rateable value of £11,250. For further details visit Gov.uk or contact the business rates department at the local authority.
SERVICE CHARGE
The current service charge stands at approximately £22,078.
EPC:
Energy Performance Rating Assessment - D.
MONEY LAUNDERING REGULATIONS In accordance with the Anti Money Laundering Regulations the Purchaser/Tenant will be required to provide two forms of identification and proof of the source of income.
Brochures
Unit 42, The Arcades, Warrington Street, Ashton-Under-Lyne, Greater Manchester, OL6
NEAREST STATIONS
Distances are straight line measurements from the centre of the postcode- Ashton-under-Lyne Station0.2 miles
- Guide Bridge Station1.2 miles
- Stalybridge Station1.4 miles
Notes
Disclaimer - Property reference Unit_42_The_Arcades. The information displayed about this property comprises a property advertisement. Rightmove.co.uk makes no warranty as to the accuracy or completeness of the advertisement or any linked or associated information, and Rightmove has no control over the content. This property advertisement does not constitute property particulars. The information is provided and maintained by BARKER PROUDLOVE LIMITED, Manchester. Please contact the selling agent or developer directly to obtain any information which may be available under the terms of The Energy Performance of Buildings (Certificates and Inspections) (England and Wales) Regulations 2007 or the Home Report if in relation to a residential property in Scotland.
Map data ©OpenStreetMap contributors.



