Balearic Islands, Menorca, Mahón, Spain
- PROPERTY TYPE
Terraced
- BEDROOMS
4
- BATHROOMS
3
- SIZE
2,691 sq ft
250 sq m
Key features
- Built-in Cupboards
- Guest Toilet
- Tiles
- Swimming Pool
- Built-in Kitchen
- Separate Sanitary Facilities
Description
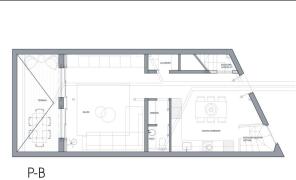
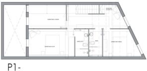
The relevant building licenses have been issued and the finished product will be a modern home that is very easy on the eye and highly comfortable, features will include high quality materials, heat pump and air conditioning. The distribution is over four levels including a basement. Plans include a big kitchen-diner, a guest toilet, laundry room, and a lovely living room with access to a small patio on the ground floor. Three bedrooms and two bathrooms, one of them en-suite, on the first floor, and on the top floor the master bedroom with an en-suite bathroom and a terrace with a small 4 x 2 m pool. This is a grand project for a beautiful, modern home in the centre of Mahon.
A perfect project with beautiful outdoor areas with a pool and terraces to relax. In a perfect location in the center of Mahón, close to shops, restaurants.
Advice on buying Spanish property
Learn everything you need to know to successfully find and buy a property in Spain.
Notes
This is a property advertisement provided and maintained by Engel & Volkers Menorca, Engel & Volkers Menorca (reference W-02TEB9) and does not constitute property particulars. Whilst we require advertisers to act with best practice and provide accurate information, we can only publish advertisements in good faith and have not verified any claims or statements or inspected any of the properties, locations or opportunities promoted. Rightmove does not own or control and is not responsible for the properties, opportunities, website content, products or services provided or promoted by third parties and makes no warranties or representations as to the accuracy, completeness, legality, performance or suitability of any of the foregoing. We therefore accept no liability arising from any reliance made by any reader or person to whom this information is made available to. You must perform your own research and seek independent professional advice before making any decision to purchase or invest in overseas property.





