5 bedroom farm house for sale
Umbria, Perugia, Citta della Pieve, Italy
- PROPERTY TYPE
Farm House
- BEDROOMS
5
- BATHROOMS
5
- SIZE
5,102 sq ft
474 sq m
Key features
- Farm House
- Land
- coppice and mixed-use forest
- arable
- vineyards
Description
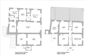
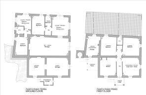
The road ends, the property is free of easements and the buildings are therefore in complete privacy. The main building consists of a flat on the first floor consisting of two bedrooms, a bathroom, a spacious eat-in kitchen with fireplace and a living room for a total of approx. 130 square metres that needs to be renovated; cellar and storeroom on the ground floor for approx. 120 square metres.
There are two flats consisting of bedroom, bathroom and kitchen, built in the early 2000s with excellent thermal insulation and skilful use of typical materials, then carefully maintained and improved over the years. In the same building there is a kitchen, next to a wood-burning oven, a porch and a barbecue area. The second building was entirely constructed in 2018, starting from the foundations, using a wooden structure, excellent bio-building techniques and with handmade stone exterior finishes; this building consists of a kitchen/dining room, bedroom with office or walk-in wardrobe, 2 bathrooms and storage room, for a total of about 83 square metres, plus a beautiful patio with pergo-tent on the short side and a porch of about 20 square metres on the short side. The land has always been cultivated by the owners using innovative natural methods. There is about one hectare of olive grove with 300 trees, about 5000 square metres are given over to vineyards with white and red grapes for making wine. To complete the property there are about 2 hectares of woodland and the remaining part is arable land, lawn and garden.
State of repair
The property is in good general maintenance condition. The entire property has double glazing and solid chestnut wood frames. The ground floor flats are in excellent condition as they are regularly rented and modernised. The main flat is less finished internally, although the roof is new and well-insulated. The buyer has full scope for aesthetic customisation. The annexe was built in a green building in 2018, with a wooden supporting structure and the best natural materials for insulation.
Utilities
The property is supplied with LPG gas, water supply is by the aqueduct and is connected to electricity. In addition, there are photovoltaic panels for 3 kW. There are thermal panels for domestic water heating. There is a pellet stove that heats both buildings. There is a spring in the woods that provides a little water and there is also a 40 cubic metre rainwater collection system. Internet in all the apartments. The gravel road is an alley where the owners pay for maintenance on the basis of thousandths with an administrator.
Use and Potential Uses
The property has much potential due to its proximity to the beautiful village of Città della Pieve. It can become a first or second home, or it can become an agriturismo as it has been one for 25 years. It is possible to build a swimming pool. For those interested in farming, a tracked tractor and implements such as a copperplate pump, mulcher and discs can be purchased with the property. The entire property is fenced off with low voltage electric wire.
Location
The farmhouse is located in the beautiful countryside of Città della Pieve in a convenient position, surrounded by greenery, 450 metres above sea level and with easy access via 1.3 km of unpaved road, just 3 minutes' drive from the town centre. Perugia airport is about 50 km away, Florence airport about 110 km, Rome - Ciampino airport about 160 km, Rome - Fiumicino airport about 190 km
Land registry details
The Great Estate group on each property acquired carries out, through the seller client's technician, a technical due diligence that allows us to know in detail the urban and cadastral situation of each property. In the case of this property, the report is available from January 2024. This due diligence may be requested by the client upon actual interest in the property.
Ownership details and eventual contractual obligations
The property is registered in the name of a natural person(s) and the sale will be subject to registration tax in accordance with the regulations in force (see costs of buying as a private individual).
Umbria, Perugia, Citta della Pieve, Italy
NEAREST AIRPORTS
Distances are straight line measurements- Florence(International)72.0 miles
- Leonardo da Vinci(International)79.6 miles
- Ciampino(International)84.4 miles
- Marina di Campo(International)90.1 miles
- Galileo(International)95.2 miles
Advice on buying Italian property
Learn everything you need to know to successfully find and buy a property in Italy.
Notes
This is a property advertisement provided and maintained by Great Estate Immobiliare, Italy (reference 8245) and does not constitute property particulars. Whilst we require advertisers to act with best practice and provide accurate information, we can only publish advertisements in good faith and have not verified any claims or statements or inspected any of the properties, locations or opportunities promoted. Rightmove does not own or control and is not responsible for the properties, opportunities, website content, products or services provided or promoted by third parties and makes no warranties or representations as to the accuracy, completeness, legality, performance or suitability of any of the foregoing. We therefore accept no liability arising from any reliance made by any reader or person to whom this information is made available to. You must perform your own research and seek independent professional advice before making any decision to purchase or invest in overseas property.





