
2 bedroom detached house for sale
Bron Yr Afon, Conwy

- PROPERTY TYPE
Detached
- BEDROOMS
2
- BATHROOMS
1
- SIZE
Ask agent
- TENUREDescribes how you own a property. There are different types of tenure - freehold, leasehold, and commonhold.Read more about tenure in our glossary page.
Freehold
Key features
- TWO BEDROOM DETACHED CHALET STYLE BUNGALOW
- WITHIN WALKING DISTANCE TO THE HISTORIC TOWN OF CONWY
- PRIVATE GARDENS
- FREEHOLD
- NO CHAIN
Description
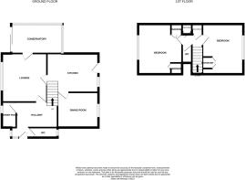
The accommodation comprises: entrance hallway with W.C and separate shower room, good size lounge, conservatory with doors leading into the garden, kitchen with space and plumbing for washing machine and a dining room.
To the first floor: landing with airing cupboard, W.C and eaves storage, two double bedrooms with storage cupboards.
UPVC double glazing and gas fired heating system with Worcester boiler.
To the front of the property there is a garden laid to lawn with well established trees and plants and a single garage and an outhouse.
To the front there is a garden laid to lawn that wraps around the side of the property with hedge boundary.
Hallway
11' 6'' x 8' 10'' (3.50m x 2.69m)
Downstairs Shower Room
5' 0'' x 6' 6'' (1.52m x 1.98m)
W.C
7' 2'' x 2' 6'' (2.18m x 0.76m)
Lounge
13' 3'' x 14' 6'' (4.04m x 4.42m)
Conservatory
12' 11'' x 7' 10'' (3.93m x 2.39m)
Kitchen
12' 9'' x 8' 10'' (3.88m x 2.69m)
Dining Room
10' 11'' x 9' 11'' (3.32m x 3.02m)
Bedroom One
12' 0'' x 12' 1'' (3.65m x 3.68m)
Bedroom Two
12' 0'' x 10' 1'' (3.65m x 3.07m)
W.C
4' 0'' x 3' 5'' (1.22m x 1.04m)
Location
Bryn Yr Afon is located on the outskirts of the famous medieval walled castle town of Conwy with its wealth of local shops, hostelries, schools, library and medical centres, busy harbour, marina and 18 hole golf course. It is also located a short distance from the edge of the Snowdonia National Park.
Directions
Turn left out of our Conwy office proceed round the one way system until you reach the roundabout, take the right turn down by the side of the castle, follow the road round and take the second left into Bryn Castell. Continue up the hill for a short distance, turn right into Bryn Yr Afon where number 7 can be found on the left in the corner.
Brochures
Full Details- COUNCIL TAXA payment made to your local authority in order to pay for local services like schools, libraries, and refuse collection. The amount you pay depends on the value of the property.Read more about council Tax in our glossary page.
- Band: D
- PARKINGDetails of how and where vehicles can be parked, and any associated costs.Read more about parking in our glossary page.
- Yes
- GARDENA property has access to an outdoor space, which could be private or shared.
- Yes
- ACCESSIBILITYHow a property has been adapted to meet the needs of vulnerable or disabled individuals.Read more about accessibility in our glossary page.
- Ask agent
Energy performance certificate - ask agent
Bron Yr Afon, Conwy
Add an important place to see how long it'd take to get there from our property listings.
__mins driving to your place
Get an instant, personalised result:
- Show sellers you’re serious
- Secure viewings faster with agents
- No impact on your credit score
Your mortgage
Notes
Staying secure when looking for property
Ensure you're up to date with our latest advice on how to avoid fraud or scams when looking for property online.
Visit our security centre to find out moreDisclaimer - Property reference 12228294. The information displayed about this property comprises a property advertisement. Rightmove.co.uk makes no warranty as to the accuracy or completeness of the advertisement or any linked or associated information, and Rightmove has no control over the content. This property advertisement does not constitute property particulars. The information is provided and maintained by Fletcher & Poole, Conwy. Please contact the selling agent or developer directly to obtain any information which may be available under the terms of The Energy Performance of Buildings (Certificates and Inspections) (England and Wales) Regulations 2007 or the Home Report if in relation to a residential property in Scotland.
*This is the average speed from the provider with the fastest broadband package available at this postcode. The average speed displayed is based on the download speeds of at least 50% of customers at peak time (8pm to 10pm). Fibre/cable services at the postcode are subject to availability and may differ between properties within a postcode. Speeds can be affected by a range of technical and environmental factors. The speed at the property may be lower than that listed above. You can check the estimated speed and confirm availability to a property prior to purchasing on the broadband provider's website. Providers may increase charges. The information is provided and maintained by Decision Technologies Limited. **This is indicative only and based on a 2-person household with multiple devices and simultaneous usage. Broadband performance is affected by multiple factors including number of occupants and devices, simultaneous usage, router range etc. For more information speak to your broadband provider.
Map data ©OpenStreetMap contributors.








