Isleham Business Park, Last four units 6, 11,23 & 24
- SIZE AVAILABLE
1,399-2,195 sq ft
130-204 sq m
- SECTOR
Industrial park to lease
- USE CLASSUse class orders: B1 Business, B2 General Industrial, B8 Storage and Distribution and Class E
B1, B2, B8, E
Lease details
- Lease available date:
- Ask agent
- Lease type:
- Long term
- Furnish type:
- Unfurnished
Key features
- Deal Direct with the Landlord Developer - No Estate agents
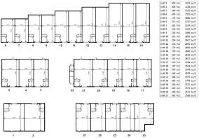
- New development of twenty six starter units between 1577 and 2196 sq ft
- Leasehold rental
- Close connection to A142 and Mildenhall
- Internet connection cctv and automatic number plate recognition included with lease foc
- Guest parking and allocated parking spaces for each unit
- Dues for Completion and occupation Jan 2024
Description
A brand new build development of steel portal frame construction with brick and block work to the elevations being under a pitched insulated roof with light panels.
Single span steel frame construction
Insulated panels to elevation and roof 5 meter high electric loading door
6 meter / 20 ft eaves
LED internal/external lighting
Toilet & Tea point
Small internal fitted office
3 allocated parking spaces
Site wide CCTV & internet delivered by superfast broadband included foc
3 phase mains supply
Brochures
Isleham Business Park, Last four units 6, 11,23 & 24
NEAREST STATIONS
Distances are straight line measurements from the centre of the postcode- Soham Station3.3 miles
- Kennett Station5.4 miles
Notes
Disclaimer - Property reference Isleham. The information displayed about this property comprises a property advertisement. Rightmove.co.uk makes no warranty as to the accuracy or completeness of the advertisement or any linked or associated information, and Rightmove has no control over the content. This property advertisement does not constitute property particulars. The information is provided and maintained by Marman Ltd, Herts. Please contact the selling agent or developer directly to obtain any information which may be available under the terms of The Energy Performance of Buildings (Certificates and Inspections) (England and Wales) Regulations 2007 or the Home Report if in relation to a residential property in Scotland.
Map data ©OpenStreetMap contributors.






