Devon Drive, Pembroke
- PROPERTY TYPE
Plot
- SIZE
Ask agent
Key features
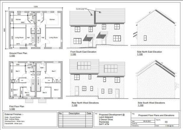
- Plot With Full Planning Permission
- 0.89 Acre
- Two Semi-Detached 2 Storey Dwellings
- Two Parking Spaces Per Dwelling
- Edge Of Town Location
- Ideal Investment Opportunity
Description
Situated in a highly desirable location on the edge of Pembroke Town, you are only a short drive away from a variety amenities, including local shops, doctors and schools. The plot can either be a great investment for someone looking to build the properties for re-sale or an opportunity to build your own dream home in a popular location.
Pembroke Town is located in the South of Pembrokeshire, approximately 12 miles away from the county town of Haverfordwest. The town is focused around the spectacular medieval castle, built in 1093 and birthplace to Henry VII, which is accompanied by a stunning mill pond and circular walk. The Main Street offers an array of independent businesses, including gift shops, cafe's and grocery stores. The town also has amenities including banks/building societies, doctors and dental surgery, solicitors, public transport links, convenience stores and both a primary and secondary school.
VIEWING: By appointment only via the Agents.
TENURE: We are advised Freehold
SERVICES: We have not checked or tested any of the services or appliances at the property.
ref: HC / LLE / JAN/ 24
TAKEONOK/LLE/05/01/24
FACEBOOK & TWITTER
Be sure to follow us on Twitter: @ WWProps
Brochures
Devon Drive, PembrokeBrochureDevon Drive, Pembroke
NEAREST STATIONS
Distances are straight line measurements from the centre of the postcode- Pembroke Station0.9 miles
- Pembroke Dock Station1.2 miles
- Lamphey Station2.1 miles

Notes
Disclaimer - Property reference 32804222. The information displayed about this property comprises a property advertisement. Rightmove.co.uk makes no warranty as to the accuracy or completeness of the advertisement or any linked or associated information, and Rightmove has no control over the content. This property advertisement does not constitute property particulars. The information is provided and maintained by West Wales Properties, Pembroke. Please contact the selling agent or developer directly to obtain any information which may be available under the terms of The Energy Performance of Buildings (Certificates and Inspections) (England and Wales) Regulations 2007 or the Home Report if in relation to a residential property in Scotland.
Map data ©OpenStreetMap contributors.




