
Norwich, NR3
- PROPERTY TYPE
Plot
- SIZE
Ask agent
Key features
- Self build opportunity
- Ultra modern in style
- Single storey under a sedum roof
- Three bedrooms
- Open plan kitchen living family room
- Good sized private rear garden
- Planning implemented, the site is up to slab level
- Much sought after location
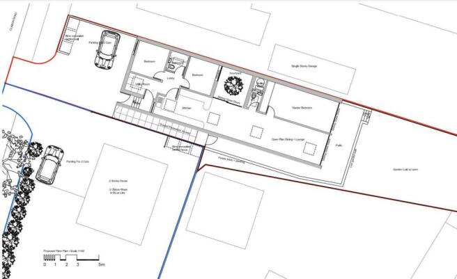
Description
Consent has been granted and planning has been implemented with the site up to slab level.
The property is ultra modern in style, single storey under a sedum roof providing three bedrooms, an open plan kitchen living family room, family bathroom, utility room and WC.
Outside there is parking for several vehicles to the front. The rear garden is private and a good size featuring a decked sun terrace,
Full details can be found using Norwich City Council's planning portal using the following reference 13/00049/F
Norwich, NR3
NEAREST STATIONS
Distances are straight line measurements from the centre of the postcode- Norwich Station1.6 miles
- Salhouse Station4.1 miles
- Brundall Gardens Station5.2 miles

Notes
Disclaimer - Property reference 32881213. The information displayed about this property comprises a property advertisement. Rightmove.co.uk makes no warranty as to the accuracy or completeness of the advertisement or any linked or associated information, and Rightmove has no control over the content. This property advertisement does not constitute property particulars. The information is provided and maintained by AbbotFox, Norwich. Please contact the selling agent or developer directly to obtain any information which may be available under the terms of The Energy Performance of Buildings (Certificates and Inspections) (England and Wales) Regulations 2007 or the Home Report if in relation to a residential property in Scotland.
Map data ©OpenStreetMap contributors.



