Eggleston Lane, Romaldkirk, Barnard Castle
- PROPERTY TYPE
Land
- BEDROOMS
2
- BATHROOMS
2
- SIZE
Ask agent
Key features
- Planning permission for a generous sized two bedroom property
- Three reception rooms
- Master bedroom with en-suite
- Gardens
- Garage
- Parking
- In the highly sought after village of Romaldkirk
Description
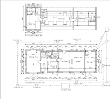
Planning permission has been granted for the construction of a generous sized two bedroom property, situated in the highly sought after village of Romaldkirk. The property briefly comprises an entrance hall, study, utility room, sitting room, dining room, breakfast kitchen, master bedroom with en suite and dressing room, further bedroom and a house bathroom. Externally, there is an integral garage, parking and surrounding gardens.
Barnard Castle 6 miles. A66 8 miles. Richmond 20 miles. Scotch Corner 20 miles. Darlington 22 miles. East Coast Railway Station - London 2 1/2 hours, Durham Tees Valley Airport 25 minutes, Newcastle Airport 45 mins. (all distances are approximate). Romaldkirk is a former estate village lying about 6 miles upstream on the River Tees from the market town of Barnard Castle. Romaldkirk is an extremely active village. The village has a fete and plot has easy access to the renowned Rose and Crown Inn. Shopping - Local Market towns of Barnard Castle, Richmond and Darlington. Larger centres at Teesside and the Metro Centre, Newcastle. Schools - The area is well served by good State and Independent Schools. Comprehensive school: Barnard Castle. Private Schools: Barnard Castle, Yarm School and Teesside High. Racing - Catterick, Sedgefield, Ripon, Thirsk and Newcastle.
Description - Planning permission has been granted for the construction of a generous sized two bedroom property offering approximately 2100 sqft of accommodation over two floors, situated in the highly sought after village of Romaldkirk. The property briefly comprises an entrance hall, study, utility room, sitting room, dining room, breakfast kitchen, master bedroom with en suite and dressing room, further bedroom and a house bathroom. Externally, there is an integral garage, parking and surrounding gardens.
Planning Permission - Full Planning permission was approved under reference DM/20/00295/FPA, with conditions discharged. For further information, please go to Durham County Council Planning Portal using the planning reference.
Wayleaves, Easements And Rights Of Way - The site is sold subject to and with the benefit of all rights, including rights of way whether public or private, rights of water, light, drainage and electricity supplies and all existing and proposed wayleaves whether referred to in the particulars or not.
Services - There are no services to the site although mains water, electric and drainage are understood to be within the vicinity. None of the services have been tested and prospective purchasers must satisfy themselves as to their availability and capacity.
Local Authority - Durham County Council Telephone number:
Health & Safety - We would ask that prospective purchasers are as vigilant as possible when making an inspection of the site, for your own safety, and no liability is accepted.
Area & Measurements - All areas, measurements and other information have been taken from various records and are believed to be correct, but any intending purchaser(s) should not rely on them as statements of fact and should satisfy themselves as to their accuracy.
Viewings - The site can be viewed from the public road which runs next to the site at any time during daylight hours subject to having a set of the sales particulars. If a site inspection is required, this must strictly be via private appointment and through the selling agent GSC Grays Tel:
Particulars - Photographs taken February 2024.
Details Written February 2024.
Auctioneers Comments: - This property is for sale by the Modern Method of Auction, meaning the buyer and seller are to Complete within 56 days (the "Reservation Period"). Interested parties personal data will be shared with the Auctioneer (iamsold).
If considering buying with a mortgage, inspect and consider the property carefully with your lender before bidding.
A Buyer Information Pack is provided. The winning bidder will pay £349.00 including VAT for this pack which you must view before bidding.
The buyer signs a Reservation Agreement and makes payment of a non-refundable Reservation Fee of 4.5% of the purchase price including VAT, subject to a minimum of £6,600.00 including VAT. This is paid to reserve the property to the buyer during the Reservation Period and is paid in addition to the purchase price. This is considered within calculations for Stamp Duty Land Tax.
Services may be recommended by the Agent or Auctioneer in which they will receive payment from the service provider if the service is taken. Payment varies but will be no more than £450.00. These services are optional.
Conditions Of Sale – Anti-Money Laundering - Should a purchaser(s) have an offer accepted on a property marketed by GSC Grays they will need to undertake an identification check. This is done to meet our obligation under Anti Money Laundering Regulations (AML) and is a legal requirement. We use a specialist third party service to verify your identity. The cost of these checks is £37.50 plus VAT (£45.00 inc VAT) per buyer, which is paid in advance, when an offer is agreed and prior to a sales memorandum being issued. This charge is non-refundable.
Brochures
Eggleston Lane, Romaldkirk, Barnard CastleEggleston Lane, Romaldkirk, Barnard Castle
NEAREST STATIONS
Distances are straight line measurements from the centre of the postcode- Bishop Auckland Station14.0 miles
Notes
Disclaimer - Property reference 32901973. The information displayed about this property comprises a property advertisement. Rightmove.co.uk makes no warranty as to the accuracy or completeness of the advertisement or any linked or associated information, and Rightmove has no control over the content. This property advertisement does not constitute property particulars. The information is provided and maintained by GSC Grays, Barnard Castle. Please contact the selling agent or developer directly to obtain any information which may be available under the terms of The Energy Performance of Buildings (Certificates and Inspections) (England and Wales) Regulations 2007 or the Home Report if in relation to a residential property in Scotland.
Auction Fees: The purchase of this property may include associated fees not listed here, as it is to be sold via auction. To find out more about the fees associated with this property please call GSC Grays, Barnard Castle on 01833 600881.
*Guide Price: An indication of a seller's minimum expectation at auction and given as a Guide Price or a range of Guide Prices. This is not necessarily the figure a property will sell for and is subject to change prior to the auction.
Reserve Price: Each auction property will be subject to a Reserve Price below which the property cannot be sold at auction. Normally the Reserve Price will be set within the range of Guide Prices or no more than 10% above a single Guide Price.
Map data ©OpenStreetMap contributors.







