
Withersfield, Haverhill, Suffolk
- PROPERTY TYPE
Land
- BEDROOMS
4
- BATHROOMS
3
- SIZE
15,246 sq ft
1,416 sq m
Key features
- New House Following Demolition of Old House
- Double Garage Permitted
- In all about 0.35 acres
- Countryside views
- Large Garden
Description
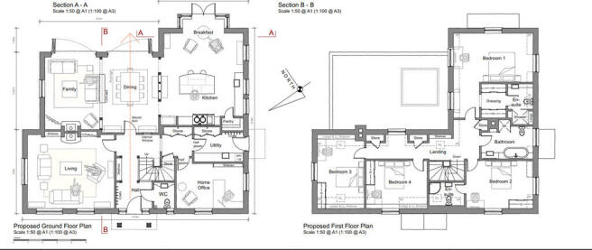
Planning Permissions have been approved for the erection of a 3,000 square foot detached house with double cart lodge sitting in a 0.35 acre plot with countryside views. The property currently situated on the site has approval to be removed and replaced with the new dwelling. The proposed dwelling enjoys an open plan Kitchen/Family/Dining Room with separate Sitting Room and Home Office and on the first floor there are 4 generous bedrooms including an impressive master suite with stunning views.
Outside the new dwelling will enjoy parking for multiple vehicles behind a gated entrance with double cart lodge and the grounds will benefit from a range of mature existing and some new trees and a particular highlight is the large south facing dining terrace.
SERVICES: To be installed in the New Dwelling. On Site electricity and water supply.
LOCAL AUTHORITY: West Suffolk Council.
VIEWING: Strictly by prior appointment through DAVID BURR.
NOTICE: Whilst every effort has been made to ensure the accuracy of these sales details, they are for guidance purposes only and prospective purchasers or lessees are advised to seek their own professional advice as well as to satisfy themselves by inspection or otherwise as to their correctness. No representation or warranty whatsoever is made in relation to this property by David Burr or its employees nor do such sales details form part of any offer or contract.
Brochures
BrochureWithersfield, Haverhill, Suffolk
NEAREST STATIONS
Distances are straight line measurements from the centre of the postcode- Dullingham Station6.9 miles
Notes
Disclaimer - Property reference 100424024923. The information displayed about this property comprises a property advertisement. Rightmove.co.uk makes no warranty as to the accuracy or completeness of the advertisement or any linked or associated information, and Rightmove has no control over the content. This property advertisement does not constitute property particulars. The information is provided and maintained by David Burr Estate Agents, Clare. Please contact the selling agent or developer directly to obtain any information which may be available under the terms of The Energy Performance of Buildings (Certificates and Inspections) (England and Wales) Regulations 2007 or the Home Report if in relation to a residential property in Scotland.
Map data ©OpenStreetMap contributors.









