Distribution warehouse to lease
Urlay Nook Road, Stockton on Tees .TS16
- SIZE AVAILABLE
20,000-40,000 sq ft
1,858-3,716 sq m
- SECTOR
Distribution warehouse to lease
- USE CLASSUse class orders: B1 Business, B2 General Industrial and B8 Storage and Distribution
B1, B2, B8
Lease details
- Lease available date:
- Ask agent
- Lease type:
- Long term
- Furnish type:
- Unfurnished
Key features
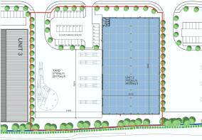
- Unit 2 is 34,000 sqft with a secured yard
- Brand New High Quality Unit
- 2 standard warehouse access doors
- 10 mtr eaves height
- See the enclosed Ebrochure for more details
- Unit 1 24,000 sq ft + Yard
- Unit 2 34,000 sq ft + Yard
- Unit 3 50,000 sq ft + Yard
- Unit 4 90,000 sq ft + Yard
- Unit 5 117,000 sq ft + Yard
Description
between 24,000 sq ft to 117,000 sq ft GIA. The scheme will deliver 315,000 sq ft (29,264 sq m) GIA total on a site of 22.8 acres.
LOCATION
Urlay Nook is situated to the south east of Stockton on Tees with direct access via Urlay Nook road from the A67, which links the A19 to the east to the A66 and A1(M) to the west. The A67 is also the principal access to Teesside International Airport, where a new 270-acre freeport is proposed offering airside customs benefits as part of the wider Teesside freeport strategy. The airport will benefit from £20M of new investment as part of an overall strategy shift to include commercial freight alongside traditional holiday flights. To support increased transport flows, ground was broken on a new roundabout and link road directly to the airport from the A67, within 500m of Urlay Nook. The subject property is the closest privately-owned industrial opportunity to the Teesside Airport Freeport zone.
SPECIFICATION
- 12m Eaves - Dock leveller loading access - Level access loading doors - 5% office content
- 30 kN m2 floor loading - LED Warehouse lighting - Large service yards- Extensive car parking
Brochures
Urlay Nook Road, Stockton on Tees .TS16
NEAREST STATIONS
Distances are straight line measurements from the centre of the postcode- Allens West Station0.5 miles
- Eaglescliffe Station1.1 miles
- Teesside Airport Station2.0 miles
Notes
Disclaimer - Property reference 2Urlaybig34000. The information displayed about this property comprises a property advertisement. Rightmove.co.uk makes no warranty as to the accuracy or completeness of the advertisement or any linked or associated information, and Rightmove has no control over the content. This property advertisement does not constitute property particulars. The information is provided and maintained by Mandale Group, Stockton On Tees. Please contact the selling agent or developer directly to obtain any information which may be available under the terms of The Energy Performance of Buildings (Certificates and Inspections) (England and Wales) Regulations 2007 or the Home Report if in relation to a residential property in Scotland.
Map data ©OpenStreetMap contributors.





