Office to lease
59 George Street, Edinburgh, EH2
- SIZE AVAILABLE
2,123-4,578 sq ft
197-425 sq m
- SECTOR
Office to lease
Lease details
- Lease available date:
- Ask agent
Key features
- Price: 27£ - 29£
Description
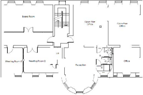
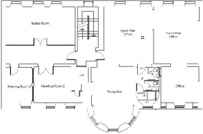
59 George Street is a five-story stone-built property with a mixed-use layout. The ground floor and basement house retail space, while the three upper levels offer office space. The first floor, spanning 2,455 square feet, can be conveniently accessed from its prominent position on George Street. Notably, the building features a lift accessible, via several stairs, from a mid-first floor landing. The current tenant's fit-out includes partitioning, creating various meeting rooms and small private offices.
The suite also boasts essential amenities such as meeting rooms and private office spaces, additionally the suite is to be refurbished to include LEDs throughout and installation of two toilets and shower facilities. Additionally, the suspended timber flooring incorporates floor boxes for added functionality.
Edinburgh is Scotland's capital city with a population of approximately 500,000. The city is located 45 miles east of Glasgow and benefits from an excellent communications system with transport links by road, rail and air to many of the major cities within the UK.
59 George Street is positioned in a prime city centre location on the south side of George Street and the corner of Fredrick Street. Situated in the heart of Edinburgh's Golden Rectangle the property is centrally located between Charlotte Square to the west with St Andrew Square to the east. The building benefits from positioning in a much sought-after location with an exceptional variety of restaurants, bars, hotels, cafés and retail stores including Abercrombie & Fitch, Lulu Lemon, Hollister, FatFace and The White Company within immediate proximity.
The property location allows for ease of travel in and around the city with short walking journeys to both tram and bus stops, as well as train services with Edinburgh Waverley Station situated under a 10-minute walk away.
Brochures
59 George Street, Edinburgh, EH2
NEAREST STATIONS
Distances are straight line measurements from the centre of the postcode- Edinburgh Waverley Station0.4 miles
- Haymarket Station0.9 miles
- Slateford Station2.5 miles
Notes
Disclaimer - Property reference EDR012321832. The information displayed about this property comprises a property advertisement. Rightmove.co.uk makes no warranty as to the accuracy or completeness of the advertisement or any linked or associated information, and Rightmove has no control over the content. This property advertisement does not constitute property particulars. The information is provided and maintained by Knight Frank, Edinburgh - Commercial. Please contact the selling agent or developer directly to obtain any information which may be available under the terms of The Energy Performance of Buildings (Certificates and Inspections) (England and Wales) Regulations 2007 or the Home Report if in relation to a residential property in Scotland.
Map data ©OpenStreetMap contributors.





