70b Front Street, Arnold, Nottingham, NG5 7EJ
- SIZE AVAILABLE
901 sq ft
84 sq m
- SECTOR
High street retail property for sale
Key features
- ADDITIONAL STORAGE TO THE FIRST FLOOR
- PROMINENT POSITIONING
- W/C AND SHOWER FACILITIES
- GLASS RETAIL FRONTAGE
Description
The property is located with a frontage to Front Street, which is the main retail area of Arnold, surrounded by nearby retailers and cafes.
Nottingham City Centre is approximately 4.5 miles distance to the south of the premises, accessed via the A611 Mansfield Road, one of the main arterial routeways in and out of the city.
Arnold is a market town, unparished area, and suburb of the city of Nottingham, in the English ceremonial county of Nottinghamshire. It is situated to the north-east of Nottingham's city boundary and is in the local government district of Gedling Borough.
The property itself is located within the main commercial area of Arnold and is surrounded by well-established retailers such as Boots, Costa Coffee and Iceland alongside a number of small independent retailers.
DESCRIPTION
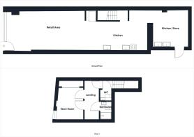
The premises comprise of a mid-terraced quality retail unit occupying a prominent position on Front Street, Arnold built up of brick and blockwork elevations beneath a flat roof covering.
Internally, the premises offer ground floor retail accommodation with rear access alongside storage, preparation, and kitchen facilities. The property provides further storage at first floor level, with W/C and shower facilities.
We have been informed the property benefits from a shared yard area to the rear of the property.
Car parking can be applied for by traders through Gedling Borough Council at either a quarterly or annual cost.
BUSINESS RATES
Rateable value: £12,250
For further information on Rates Payable and Small Business Rates Relief contact Gedling Borough Council.
PLANNING
We understand that the property has Planning Consent for its existing use.
For further information, please contact Gedling Borough Council.
EPC (Energy Performance Certificates)
A copy of the existing building's Energy Performance Certificate can be obtained from the Agents.
TERMS
The property is currently let by way of an existing FRI lease. Vacant possession may be available upon completion.
PRICE
£190,000 (One Hundred and Ninety Thousand Pounds)
SERVICES
We understand that mains electricity, gas, water and drainage are connected to the premises.
VAT
Prices are quoted exclusive of Value Added Tax (VAT).
LEGAL COSTS
Each party will be responsible for their own legal costs incurred in this transaction.
VIEWING
Strictly by prior appointment with the Sole Agents Musson Liggins Ltd.
Energy Performance Certificates
EPCBrochures
70b Front Street, Arnold, Nottingham, NG5 7EJ
NEAREST STATIONS
Distances are straight line measurements from the centre of the postcode- Moor Bridge Tram Stop2.6 miles
- Basford Tram Stop2.6 miles
- David Lane Tram Stop2.6 miles
Notes
Disclaimer - Property reference 70bFrontStreet. The information displayed about this property comprises a property advertisement. Rightmove.co.uk makes no warranty as to the accuracy or completeness of the advertisement or any linked or associated information, and Rightmove has no control over the content. This property advertisement does not constitute property particulars. The information is provided and maintained by Musson Liggins Limited, Nottingham. Please contact the selling agent or developer directly to obtain any information which may be available under the terms of The Energy Performance of Buildings (Certificates and Inspections) (England and Wales) Regulations 2007 or the Home Report if in relation to a residential property in Scotland.
Map data ©OpenStreetMap contributors.





