
Springs Way, Brigg, DN20
- PROPERTY TYPE
Land
- SIZE
Ask agent
Key features
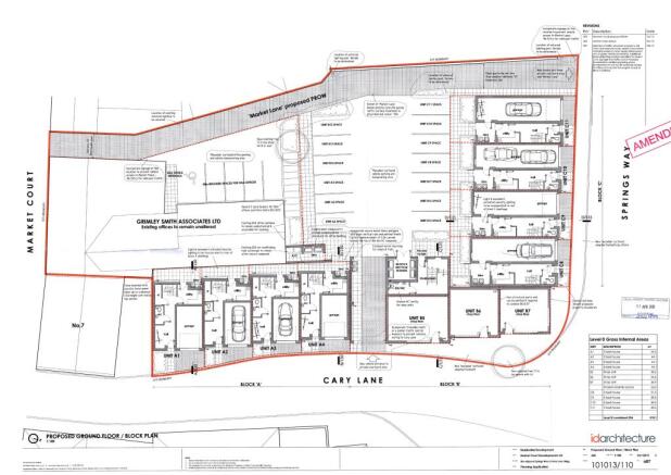
- PROPOSED 3 STOREY DEVELOPMENT
- CENTE TOWN LOCATION
- FULL PLANNING CONSENT
- 8 TOWNHOUSES
- 6 APARTMENTS
- 3 RETAIL UNITS
- 0..5 ACRE SITE
- SERVICES AVAILABLE LOCALLY
Description
The site occupies a prominent position on the corner of Carey Lane and Springs Way and was formerly used as car parking and storage/retail. The site is reasonably level and it understood that mains services are available locally however the prospective Purchaser is advised to satisfy themselves as to the exact location, extend and connection costs from the statutory undertakers prior to legal exchange of contracts.
Tenure: Freehold,LOCATION
Located in the Conservation area of the historic town of Brigg in North Lincolnshire this 0.5 acre (approx) site is situated just off the market place and allows for excellent access to the town amenities including schools, shops, bars, cafes, doctors and leisure centre. The town itself has good connections to the regions major communication centres via the A15 and A18 and the M180 motorway network lies approximately 3 miles distant.
DESCRIPTION
The site occupies a prominent position on the corner of Carey Lane and Springs Way and was formerly used as car parking and storage/retail. The site is reasonably level and it understood that mains services are available locally however the prospective Purchaser is advised to satisfy themselves as to the exact location, extend and connection costs from the statutory undertakers prior to legal exchange of contracts.
PLANNING
The site has the benefit of Full Planning Permission granted under licence number PA/2017/1652 dated 8th January 2018. Full copies of the relevant reports, drawings, access statements and decision are available via the North Lincolnshire Council planning website ( A material start has been made on the site and acknowledged by North Lincolnshire planners thus instituting the planning permission.
AUCTIONEERS' COMMENTS
Pattinson Auction are working in Partnership with the marketing agent on this online auction sale and are referred to below as 'The Auctioneer'.
This auction lot is being sold either under conditional (Modern) or unconditional (Traditional) auction terms and overseen by the auctioneer in partnership with the marketing agent.
The property is available to be viewed strictly by appointment only via the Marketing Agent or The Auctioneer. Bids can be made via the Marketing Agents or via The Auctioneers website.
Please be aware that any enquiry, bid or viewing of the subject property will require your details being shared between both any marketing agent and The Auctioneer in order that all matters can be dealt with effectively.
AUCTION CONDITIONS
The property is being sold via a transparent online auction.
In order to submit a bid upon any property being marketed by The Auctioneer, all bidders/buyers will be required to adhere to a verification of identity process in accordance with Anti Money Laundering procedures. Bids can be submitted at any time and from anywhere.
Our verification process is in place to ensure that AML procedure are carried out in accordance with the law.
A Legal Pack associated with this particular property is available to view upon request and contains details relevant to the legal documentation enabling all interested parties to make an informed decision prior to bidding. The Legal Pack will also outline the buyers’ obligations and sellers’ commitments. It is strongly advised that you seek the counsel of a solicitor prior to proceeding with any property and/or Land Title purchase.
RESERVATION PROCEDURE
In order to secure the property and ensure commitment from the seller, upon exchange of contracts the successful bidder will be expected to pay a non-refundable deposit equivalent to 6% inc VAT of the purchase price of the property. The deposit will be a contribution to the purchase price. A non-refundable reservation fee of up to 6% inc VAT (subject to a minimum of 6,000 inc VAT) is also required to be paid upon agreement of sale. The Reservation Fee is in addition to the agreed purchase price and consideration should be made by the purchaser in relation to any Stamp Duty Land Tax liability associated with overall purchase costs.
Both the Marketing Agent and The Auctioneer may believe necessary or beneficial to the customer to pass their details to third party service suppliers, from which a referral fee may be obtained. There is no requirement or indeed obligation to use these recommended suppliers or services.
Brochures
BrochureSprings Way, Brigg, DN20
NEAREST STATIONS
Distances are straight line measurements from the centre of the postcode- Brigg Station0.4 miles
- Barnetby Station3.7 miles
- Kirton Lindsey Station6.2 miles
Notes
Disclaimer - Property reference P1635. The information displayed about this property comprises a property advertisement. Rightmove.co.uk makes no warranty as to the accuracy or completeness of the advertisement or any linked or associated information, and Rightmove has no control over the content. This property advertisement does not constitute property particulars. The information is provided and maintained by Newton Fallowell, Brigg. Please contact the selling agent or developer directly to obtain any information which may be available under the terms of The Energy Performance of Buildings (Certificates and Inspections) (England and Wales) Regulations 2007 or the Home Report if in relation to a residential property in Scotland.
Auction Fees: The purchase of this property may include associated fees not listed here, as it is to be sold via auction. To find out more about the fees associated with this property please call Newton Fallowell, Brigg on 01652 783030.
*Guide Price: An indication of a seller's minimum expectation at auction and given as a Guide Price or a range of Guide Prices. This is not necessarily the figure a property will sell for and is subject to change prior to the auction.
Reserve Price: Each auction property will be subject to a Reserve Price below which the property cannot be sold at auction. Normally the Reserve Price will be set within the range of Guide Prices or no more than 10% above a single Guide Price.
Map data ©OpenStreetMap contributors.





