
Green End Road, Earby, Barnoldswick, Lancashire, BB18

- PROPERTY TYPE
Terraced
- BEDROOMS
3
- BATHROOMS
1
- SIZE
1,074 sq ft
100 sq m
- TENUREDescribes how you own a property. There are different types of tenure - freehold, leasehold, and commonhold.Read more about tenure in our glossary page.
Freehold
Key features
- Character mid terrace
- Three bedrooms
- Spacious living accommodation
- Newly fitted kitchen
- Good sized front garden
- Ideal first time buyer property
- Superb location within Earby village
- No onward chain
Description
NO ONWARD CHAIN
A rare opportunity to acquire a spacious three bedroom family home set in this popular location within the village of Earby.
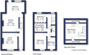
The ground floor accommodation comprises of a good sized living room with large double glazed window to the front elevation, electric fire and radiator, spacious dining area leading through to the newly fitted kitchen which includes a range of base and wall units with worktops over, integrated dishwasher and washing machine, induction hob with electric oven below and extractor fan above, Belfast sink, tiled flooring, useful understairs storage space and door leading to the enclosed rear yard.
To the first floor landing which provides access to two bedrooms, with the master bedroom being at the front of the property, along with an occasional room which can be used as a working from home office space. The house bathroom, which has been recently upgraded by the current owners to an extremely high standard, is fitted with a three piece suite in white comprising of a panelled bath with shower over, pedestal hand wash basin, low flush w.c., chrome heated towel rail and extractor fan.
The property does include a further attic room with Velux window allowing for an abundance of natural lighting and eaves storage to both sides.
Externally, to the front of the property is an extremely well presented lawned garden, and to the rear is the private and enclosed rear yard.
Local Authority & Council Tax Band
• Pendle Borough Council
• Council Tax Band A
Tenure, Services & Parking
• Freehold
• Mains electricity, water, drainage and gas are installed. Gas fired central heating.
• There is no allocated parking available at this property, however on street parking is available.
Internet & Mobile Coverage
The Ofcom website shows internet available from at least 1 provider. Outdoor mobile coverage (excl 5G) available from at least 1 of the UK’s 4 main providers. Results are predictions not a guarantee & may differ subject to circumstances, exact location & network outages.
The village of Earby is approximately 7 miles from Skipton and a similar distance from Colne where there is access to the central M6 motorway network. Within the village of Earby, there is a good range of shops including a supermarket, and there is also a church and primary school. Secondary schooling is available at nearby Barnoldswick.
On entering Earby, take the Skipton Road to the centre of the village, turning left up New Road. Continue to the T-junction, turning left onto Green End Road where the property will be on your left identified after a short distance by our Dacre, Son & Hartley 'For Sale' board.
Brochures
Particulars- COUNCIL TAXA payment made to your local authority in order to pay for local services like schools, libraries, and refuse collection. The amount you pay depends on the value of the property.Read more about council Tax in our glossary page.
- Band: A
- PARKINGDetails of how and where vehicles can be parked, and any associated costs.Read more about parking in our glossary page.
- On street,Not allocated
- GARDENA property has access to an outdoor space, which could be private or shared.
- Yes
- ACCESSIBILITYHow a property has been adapted to meet the needs of vulnerable or disabled individuals.Read more about accessibility in our glossary page.
- No wheelchair access
Green End Road, Earby, Barnoldswick, Lancashire, BB18
Add an important place to see how long it'd take to get there from our property listings.
__mins driving to your place
Get an instant, personalised result:
- Show sellers you’re serious
- Secure viewings faster with agents
- No impact on your credit score
Your mortgage
Notes
Staying secure when looking for property
Ensure you're up to date with our latest advice on how to avoid fraud or scams when looking for property online.
Visit our security centre to find out moreDisclaimer - Property reference SKI240245. The information displayed about this property comprises a property advertisement. Rightmove.co.uk makes no warranty as to the accuracy or completeness of the advertisement or any linked or associated information, and Rightmove has no control over the content. This property advertisement does not constitute property particulars. The information is provided and maintained by Dacre Son & Hartley, Skipton. Please contact the selling agent or developer directly to obtain any information which may be available under the terms of The Energy Performance of Buildings (Certificates and Inspections) (England and Wales) Regulations 2007 or the Home Report if in relation to a residential property in Scotland.
*This is the average speed from the provider with the fastest broadband package available at this postcode. The average speed displayed is based on the download speeds of at least 50% of customers at peak time (8pm to 10pm). Fibre/cable services at the postcode are subject to availability and may differ between properties within a postcode. Speeds can be affected by a range of technical and environmental factors. The speed at the property may be lower than that listed above. You can check the estimated speed and confirm availability to a property prior to purchasing on the broadband provider's website. Providers may increase charges. The information is provided and maintained by Decision Technologies Limited. **This is indicative only and based on a 2-person household with multiple devices and simultaneous usage. Broadband performance is affected by multiple factors including number of occupants and devices, simultaneous usage, router range etc. For more information speak to your broadband provider.
Map data ©OpenStreetMap contributors.






