4 bedroom detached house for sale
Calcott Lane, Bicton, Shrewsbury, SY3 8EX

- PROPERTY TYPE
Detached
- BEDROOMS
4
- BATHROOMS
2
- SIZE
Ask agent
- TENUREDescribes how you own a property. There are different types of tenure - freehold, leasehold, and commonhold.Read more about tenure in our glossary page.
Freehold
Description
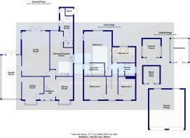
Accommodation comprises
Part glazed entrance door.
Entrance Hall
Staircase leading to First Floor, useful under stairs store.
Dining Room
14' 6'' max x 9' 0'' (4.42m x 2.74m)
Glass fronted display cabinets set to alcoves, walk in hard wood double glazed window to the front.
Sitting Room
14' 6'' max x 11' 9'' (4.42m x 3.58m)
Little Wenlock wood burner set to stone hearth, walk in hard wood double glazed bay window to the front, glazed door with steps leads down to the Garden Room.
Living Room
24' 0'' x 14' 2'' (7.31m x 4.31m)
Recessed fireplace with Clearview log burner set to slate hearth with feature surround, hard wood double glazed French doors with side panels lead to delightful sun terrace and enjoy lovely views over the garden, further window, 2 ornate ceiling roses.
Garden Room
23' 2'' x 12' 9'' (7.06m x 3.88m)
Tiled floor with electric under-floor heating, Clearview log burner set to slate hearth, bespoke, oak fitted window seating with storage beneath, uPVC double glazed windows to all sides, French doors and clear glass roof provide fantastic natural lighting and glorious views of the garden.
Kitchen/Breakfast Room
20' 3'' x 12' 1'' (6.17m x 3.68m)
Fitted with an excellent range of quality units with soft close doors, ample Corian work surfaces incorporating 1 1/2 bowl sink unit with drainer and matching Corian splash backs, Amtico LVT flooring, space and plumbing for dishwasher and American style fridge/freezer, ample space for further appliances, tiled areas, oil fired Aga with 4 ovens, 2 hot plates and integrated halogen double hob.
Utility Room
14' 5'' x 6' 11'' (4.39m x 2.11m)
Tiled flooring, range of units and work surfaces, Belfast style sink unit with tiled splash, space for washing machine and tumble dryer, newly fitted Mistral oil fired central heating boiler, built in shelved storage cupboard, part glazed door to rear garden.
Cloakroom/WC
Low level flush WC, part tiled walls, tiled floor window to the side. Could be extended into adjacent storeroom.
First Floor Landing
Window enjoying aspect over fields to the front.
Bedroom 1
16' 7'' x 14' 0'' (5.05m x 4.26m)
Fitted with an extensive range of wardrobes with mirror fronted sliding doors, dual aspect windows overlooking garden, additional built in storage cupboard, loft access.
En Suite Bathroom
10' 10'' x 7' 1'' (3.30m x 2.16m)
Tiled flooring with under floor heating. The fully tiled bathroom is fitted with quality suite providing a large, deep fill bath, twin wash basin set Utopia vanity unit with cupboards beneath, Corian surface and splash, large corner shower cubicle with mains fed power shower and sliding screen, WC, heated towel rail, tiled walls, twin mirrored cabinets with shaver sockets
Bedroom 2
12' 3'' x 11' 9'' (3.73m x 3.58m)
Fitted wardrobe with mirror fronted sliding doors, window with open aspect.
Bedroom 3
12' 3'' x 9' 0'' (3.73m x 2.74m)
Fitted wardrobes with mirror fronted sliding doors, window with attractive outlook..
Bedroom 4
12' 3'' x 8' 2'' (3.73m x 2.49m)
Fitted wardrobes with mirror fronted sliding doors, window with views over the garden.
Shower Room
Tiled flooring with under floor heating, fitted with corner power steam shower with multi drench function, drench head and additional feeder shower connection, twin wash basin with Corian top and Utopia cupboards beneath, WC, heated towel rail, twin mirrored cabinets with shaver sockets, built in airing cupboard, window to the side.
Outside
Approached over a wide gravel driveway providing parking for 5-6 cars.
Large Double Garage
21' 1'' x 18' 10'' (6.42m x 5.74m)
Twin remote control electric roller doors, power and lighting points, tap.
Front Garden
Providing lawn with shrub beds and borders and trees, pathway to entrance door and front gate with stone seating area.
Rear Garden
Extensive garden extends to the rear and side mainly laid to lawn with attractive shrub beds and borders, selection of trees including Magnolia, fig, apple and plum, covered sun terrace, tap and outside power socket. There is an additional paved section and lower area of garden with further patio with lawn and trees. The garden offers great privacy and is enclosed by hedging and fencing.
Out Buildings
In addition to the Garage there are lean-to log stores, a block built store 9' x 8' with power and lighting, a cedar wood, brick greenhouse 12'3" x 9'5" and insulated timber summer house 9'7" x 9'7.
Agents' Note
The property has the income benefit of 4 kw photovoltatic panels on a transferable feed-in tariff scheme and providing a generous contribution towards home electricity use.
Local Information
This spacious family home is situated in its own private grounds with stunning conservatory over looking the garden. Situated in the popular village of Bicton which has a community hall, church, primary school, park and playing fields, The property is within walking distance of the park and ride providing transport to the historical town of Shrewsbury with theatre, bus and railway stations, fabulous shops and restaurants and the Quarry Park. There is a large Co-op, hairdressers, takeaways, restaurants and primary school close by.
Brochures
Property BrochureFull Details- COUNCIL TAXA payment made to your local authority in order to pay for local services like schools, libraries, and refuse collection. The amount you pay depends on the value of the property.Read more about council Tax in our glossary page.
- Band: F
- PARKINGDetails of how and where vehicles can be parked, and any associated costs.Read more about parking in our glossary page.
- Yes
- GARDENA property has access to an outdoor space, which could be private or shared.
- Yes
- ACCESSIBILITYHow a property has been adapted to meet the needs of vulnerable or disabled individuals.Read more about accessibility in our glossary page.
- Ask agent
Calcott Lane, Bicton, Shrewsbury, SY3 8EX
Add an important place to see how long it'd take to get there from our property listings.
__mins driving to your place
Get an instant, personalised result:
- Show sellers you’re serious
- Secure viewings faster with agents
- No impact on your credit score
Your mortgage
Notes
Staying secure when looking for property
Ensure you're up to date with our latest advice on how to avoid fraud or scams when looking for property online.
Visit our security centre to find out moreDisclaimer - Property reference 12472238. The information displayed about this property comprises a property advertisement. Rightmove.co.uk makes no warranty as to the accuracy or completeness of the advertisement or any linked or associated information, and Rightmove has no control over the content. This property advertisement does not constitute property particulars. The information is provided and maintained by Zaza Johnson & Bath, Shrewsbury. Please contact the selling agent or developer directly to obtain any information which may be available under the terms of The Energy Performance of Buildings (Certificates and Inspections) (England and Wales) Regulations 2007 or the Home Report if in relation to a residential property in Scotland.
*This is the average speed from the provider with the fastest broadband package available at this postcode. The average speed displayed is based on the download speeds of at least 50% of customers at peak time (8pm to 10pm). Fibre/cable services at the postcode are subject to availability and may differ between properties within a postcode. Speeds can be affected by a range of technical and environmental factors. The speed at the property may be lower than that listed above. You can check the estimated speed and confirm availability to a property prior to purchasing on the broadband provider's website. Providers may increase charges. The information is provided and maintained by Decision Technologies Limited. **This is indicative only and based on a 2-person household with multiple devices and simultaneous usage. Broadband performance is affected by multiple factors including number of occupants and devices, simultaneous usage, router range etc. For more information speak to your broadband provider.
Map data ©OpenStreetMap contributors.







