St Albans Road, Lytham St. Annes, Lancashire, FY8 1XD

- PROPERTY TYPE
Block of Apartments
- BEDROOMS
3
- BATHROOMS
3
- SIZE
Ask agent
Key features
- Investment Property Close To St. Annes Square
- Annual Income of £20,400 PA
- Ground Floor - A spacious one/two-bedroom apartment, providing flexible living arrangements.
- First Floor - A well-appointed two-bedroom apartment.
- Top Floor -Another one/two-bedroom apartment, offering versatile space.
Description
- Ground Floor: A spacious one/two-bedroom apartment, providing flexible living arrangements.
- First Floor: A well-appointed two-bedroom apartment.
- Top Floor: Another one/two-bedroom apartment, offering versatile space.
With its prime location and solid rental income, early viewing is highly recommended to fully appreciate the potential of this investment opportunity.
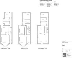
Flat 1 - 68 sqm
This apartment includes a living room, a large double bedroom, a fitted kitchen, a bathroom, and an additional room with flexible use, perfect for a home office, storage, or a guest room.
Flat 2 - 68 sqm
Comprising a living room and fitted kitchen overlooking the front of the property, this apartment also includes two double bedrooms and a family bathroom, providing ample living space.
Flat 3 - 62 sqm
his spacious apartment boasts a large living room that spans the width of the property, a fitted kitchen at the rear, a double bedroom, a family bathroom, and an additional room with flexible use, ideal for various needs.
- COUNCIL TAXA payment made to your local authority in order to pay for local services like schools, libraries, and refuse collection. The amount you pay depends on the value of the property.Read more about council Tax in our glossary page.
- Ask agent
- PARKINGDetails of how and where vehicles can be parked, and any associated costs.Read more about parking in our glossary page.
- Ask agent
- GARDENA property has access to an outdoor space, which could be private or shared.
- Ask agent
- ACCESSIBILITYHow a property has been adapted to meet the needs of vulnerable or disabled individuals.Read more about accessibility in our glossary page.
- Ask agent
St Albans Road, Lytham St. Annes, Lancashire, FY8 1XD
Add an important place to see how long it'd take to get there from our property listings.
__mins driving to your place
Get an instant, personalised result:
- Show sellers you’re serious
- Secure viewings faster with agents
- No impact on your credit score



Your mortgage
Notes
Staying secure when looking for property
Ensure you're up to date with our latest advice on how to avoid fraud or scams when looking for property online.
Visit our security centre to find out moreDisclaimer - Property reference FLS-31483107. The information displayed about this property comprises a property advertisement. Rightmove.co.uk makes no warranty as to the accuracy or completeness of the advertisement or any linked or associated information, and Rightmove has no control over the content. This property advertisement does not constitute property particulars. The information is provided and maintained by Frank Wyles and Co, Lytham Saint Annes. Please contact the selling agent or developer directly to obtain any information which may be available under the terms of The Energy Performance of Buildings (Certificates and Inspections) (England and Wales) Regulations 2007 or the Home Report if in relation to a residential property in Scotland.
*This is the average speed from the provider with the fastest broadband package available at this postcode. The average speed displayed is based on the download speeds of at least 50% of customers at peak time (8pm to 10pm). Fibre/cable services at the postcode are subject to availability and may differ between properties within a postcode. Speeds can be affected by a range of technical and environmental factors. The speed at the property may be lower than that listed above. You can check the estimated speed and confirm availability to a property prior to purchasing on the broadband provider's website. Providers may increase charges. The information is provided and maintained by Decision Technologies Limited. **This is indicative only and based on a 2-person household with multiple devices and simultaneous usage. Broadband performance is affected by multiple factors including number of occupants and devices, simultaneous usage, router range etc. For more information speak to your broadband provider.
Map data ©OpenStreetMap contributors.




