
Land for Sale, Leamington Road, Southport, PR8 3LB
- PROPERTY TYPE
Land
- SIZE
Ask agent
Key features
- A Rare Opportunity to Purchase a Piece of Land
- Prime Location on the 'Door Step' of Ainsdale Village
- Freehold Title Number MS362644
- Early Viewing Advised
- Please Contact Chris Tinsley or Paul Hamilton for Further Information
Description
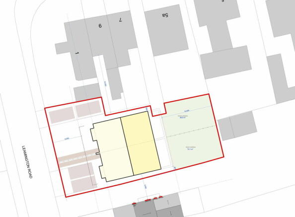
A unique and very rare opportunity to purchase this Freehold plot of land (Title Number MS362644) located literally a stones throw from Station Road in the heart of Ainsdale Village. From discussions with a local Architect we feel the plot is large enough for one detached dwelling or a pair of semi detached houses. The plot is offered for sale without planning permission. For further information on the plot and a recent pre-application submitted please contact Paul Hamilton or Chris Tinsley on .
Brochures
Brochure 1Land for Sale, Leamington Road, Southport, PR8 3LB
NEAREST STATIONS
Distances are straight line measurements from the centre of the postcode- Ainsdale Station0.3 miles
- Hillside Station1.5 miles
- Birkdale Station2.4 miles



Notes
Disclaimer - Property reference S1066702. The information displayed about this property comprises a property advertisement. Rightmove.co.uk makes no warranty as to the accuracy or completeness of the advertisement or any linked or associated information, and Rightmove has no control over the content. This property advertisement does not constitute property particulars. The information is provided and maintained by Chris Tinsley Estate Agents, Southport. Please contact the selling agent or developer directly to obtain any information which may be available under the terms of The Energy Performance of Buildings (Certificates and Inspections) (England and Wales) Regulations 2007 or the Home Report if in relation to a residential property in Scotland.
Map data ©OpenStreetMap contributors.





