Land for sale
The Hulcott Estate, Aylesbury
- SIZE
Ask agent
- SECTOR
Land for sale
Description
Aylesbury, Buckinghamshire
Approximately 346.80 acres (140.35 hectares)
THIS ESTATE IS STRATEGICALLY LOCATED WITH
A DIVERSE MIX OF POTENTIAL DEVELOPMENT
OPPORTUNITIES.
The Estate comprises agricultural land, a vacant
farmhouse, a range of traditional and modern farm
buildings with development potential (subject to Planning
Permission), together with farmland strategically located
close to Aylesbury.
Aylesbury 3 miles | Oxford 22 miles | Northampton 30 miles
London 35 miles (via train from Aylesbury to London Marylebone
1hr) (All distances and times are approximate).
LOT 1: THE HULCOTT ESTATE, AYLESBURY
This Estate extends in all to approximately 346.80 acres (140.35 hectares), currently let on 9 different
tenancy agreements as well as some in-hand land. The property comprises agricultural land together with
traditional and modern farm buildings along with a vacant farmhouse. It has several development and
diversification opportunities (subject to Planning Permission). A plan detailing the areas included within
each tenancy is available in the data room, together with recent planning submissions and decisions.
The Estate in more detail comprises:
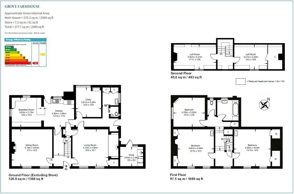
GROVE FARMHOUSE AND FARM
BUILDINGS (Red on the plan)
A Grade II Listed farmhouse and former Dairy
that currently benefits from vacant possession
but is in need of refurbishment. Listed Building
and Planning consents for redevelopment and
modernisation were obtained in June 2024.
Details for this project can be found in the data
room.
Adjacent to Grove Farmhouse is a range of
traditional and modern farm buildings which
again present an opportunity for development for
residential use (subject to Planning Permission).
The property benefits from good access directly
off Rowsham Road (public highway).
LAND TO THE WEST OF THE A418
(Green on the plan)
The land extends to approximately 44.45 acres
of pastureland which sits to the rear of Grove
Farmhouse and buildings and benefits from
several road access points. The land is bordered
by the A418 to the East and Rowsham Road to the
South.
LAND TO THE NORTH WEST OF THE
A418 AND CREMATORIUM ACCESS
(Yellow on the plan)
The land extends to approximately 77.81 acres
of pastureland and also includes the freehold
ownership of the access to the crematorium.
The land includes part of a 'safeguarded
highway corridor' for what may become part
of the Aylesbury northern link road. If this was
constructed, it is believed some of the land may
offer further development opportunities in the
future (subject to Planning Permission).
LAND TO THE EAST OF A418 (Purple on the plan)
The land extends to approximately 72.25 acres
of pastureland between Hulcott and Bierton and
adjoins the A148. This land has previously had
interest from Solar PV and battery site promoters.
LAND TO NORTH EAST OF HULCOTT (Blue on the plan)
The land extends to approximately 47.79 acres
of pastureland and is adjacent to Hulcott. It is
bordered on two sides by the River Thame. A
small redundant brick building lies close to the
centre of this land.
LAND TO SOUTH OF HULCOTT (Pink on the plan)
The land extends to approximately 11.91 acres of pastureland together with an agricultural building,
served by hardstanding. The property is accessed off the public highway and by a track which also
provides for access to the land known as Land to the Southeast of Hulcott.
LAND TO SOUTH EAST OF HULCOTT (Orange on the plan)
The land extends to approximately 91.03 acres of watermeadow and pastureland. It is accessed
through the Land South of Hulcott. It was subject to a conditional agreement for lease to
Buckinghamshire Advantage to provide Biodiversity Offset land for the Council of Aylesbury
Woodlands development. Terms for the renewal of this agreement are currently being negotiated
by the seller.
RESTRICTIVE COVENANT (Hatched on the plan)
Adjoining the land is a further area, extending to circa 47 acres that had been previously sold
off which is subject to a Restrictive Covenant for the benefit of the Hulcott Estate. This interest
would be transferred to the buyer. Further details of the Restrictive Covenant are available in the
data room.
Energy Performance Certificates
Photo 3Brochures
The Hulcott Estate, Aylesbury
NEAREST STATIONS
Distances are straight line measurements from the centre of the postcode- Aylesbury Station2.4 miles
- Stoke Mandeville Station3.4 miles
- Aylesbury Vale Parkway Station3.7 miles
Notes
Disclaimer - Property reference 443164FH. The information displayed about this property comprises a property advertisement. Rightmove.co.uk makes no warranty as to the accuracy or completeness of the advertisement or any linked or associated information, and Rightmove has no control over the content. This property advertisement does not constitute property particulars. The information is provided and maintained by Brown & Co, Banbury. Please contact the selling agent or developer directly to obtain any information which may be available under the terms of The Energy Performance of Buildings (Certificates and Inspections) (England and Wales) Regulations 2007 or the Home Report if in relation to a residential property in Scotland.
Map data ©OpenStreetMap contributors.





