Travelodge, 73 Hollybush Hill, London, E11 1PE
- SIZE
Ask agent
- SECTOR
Hotel for sale
Key features
- Situated close to Snaresbrook underground station and the numerous amenities on Wanstead High Road
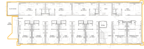
- The total GIA is approximately 678.5 sqm (7,303 sqft), arranged on ground and first floors
- The property is let to Travelodge Hotels Limited on an FRI lease with an effective term certain to 2041 (18.8 years unexpired without break)
- Lease is subject to 5 yearly uncapped rent reviews, increasing with RPI indexation, in 2025 and 2030
- Rent topped up to the 2025 review - £205,000 per annum
- The property benefits from the right to use the car park
- Future potential to provide an alternative residential focused use, subject to vacant possession and necessary consents
- The 999-year lease is non-restrictive towards planning and development, with airspace included, allowing for potential additional height
Description
The property is let to Travelodge Hotels Limited on a full repairing and insuring lease expiring 9th August 2035. The total annual income is £151,509 per annum.
Furthermore there is a Landlord option to require the tenant to enter into a reversionary lease of a further 5 years, 11 months and 7 days from 10th August 2035, which if exercised provides a term of 18.8 years unexpired no break.
Lease subject to 5 yearly uncapped rent reviews, increasing with RPI indexation, in 2025 and 2030. In 2025, the rent will increase to £205,000 PA (which our client will be topping up to).
The 999-year lease is non-restrictive towards planning and development and the airspace is also demised to 999 so planning can be sought for any additional height. The 999 has been designed to be as close to a freehold as possible.
Brochures
Travelodge, 73 Hollybush Hill, London, E11 1PE
NEAREST STATIONS
Distances are straight line measurements from the centre of the postcode- Snaresbrook Station0.1 miles
- Wanstead Station0.6 miles
- South Woodford Station0.7 miles
Notes
Disclaimer - Property reference TravelodgeSnaresbrook. The information displayed about this property comprises a property advertisement. Rightmove.co.uk makes no warranty as to the accuracy or completeness of the advertisement or any linked or associated information, and Rightmove has no control over the content. This property advertisement does not constitute property particulars. The information is provided and maintained by GLPG, Marylebone. Please contact the selling agent or developer directly to obtain any information which may be available under the terms of The Energy Performance of Buildings (Certificates and Inspections) (England and Wales) Regulations 2007 or the Home Report if in relation to a residential property in Scotland.
Map data ©OpenStreetMap contributors.






