Wood Street, Stratford-upon-Avon
- SIZE AVAILABLE
3,182 sq ft
296 sq m
- SECTOR
Office to lease
Lease details
- Lease available date:
- Ask agent
Key features
- Part Ground, First and Second Floor Office Accommodation
- Extending approx. 296.7m² (3182 ft²) ) NIA
- Town Centre Location
- Self Contained With Main Door Accessed Via Wood Street
Description
Location - Stratford-upon-Avon is a historic, attractive and affluent market town which is popular with tourists. It is located in the heart of Warwickshire approx. 25 miles of Birmingham and 20 miles of Banbury. The property is located in the Town Centre on Wood Street in close proximity to Bridge Street and the High Street benefitting from great road communications such as the A46 and M40. Occupiers nearby include Trespass, Natwest, Coventry Building Society, Boots and Betfred amongst other.
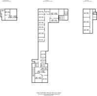
Accommodation - The property comprises the following accommodation:
Ground Floor: 51.2m² (550 ft²)
First Floor: 194.9m² (2088 ft²)
Second Floor: 50.6m² (544m²)
Total Net Internal Area: 296.7m² (3182 ft²)
Services - We understand mains electric, water and drainage are connected. All interested parties are advised to make their own enquiries to confirm continuity of supply.
Business Rates - Rateable Value - £23,000
Energy Performance Certificate - EPC Rating: Band D 76
Planning - Presently Class E as defined by the Town & Country Planning Act (Use Classes Order).
For all planning enquiries, please contact Stratford-on-Avon District Council on or call .
Tenure - Leasehold Terms are anticipated to be in the region of 3-5 years on an effective Full Repairing and Insuring Lease.
An opportunity to lease part of a floor is available subject to conditions. The demise would otherwise be let on an Internal Repairing Lease under negotiated terms for in the region of £30,000..
Vat - VAT is applicable on the property.
Legal Costs - Each party is to meet their own costs.
Viewing - To arrange a viewing please contact the commercial Team: or alternatively email
Important Notes - We are required by HMRC to conduct anti-money laundering checks on all parties with an interest in the property and accordingly we will require forms of identification in due course. Particulars: These Particulars do not constitute an offer or contract and should not be relied upon as being factually accurate, the photographs show only part of the property and the areas, measurements and distances given are approximately only. A buyer or a lessee must make their own enquiries or inspections and should not solely rely on these Particulars or other statements by Sheldon Bosley Knight. VAT: The VAT position relating to the property may change without notice
Brochures
Wood Street, Stratford-upon-Avon
NEAREST STATIONS
Distances are straight line measurements from the centre of the postcode- Stratford-upon-Avon Station0.3 miles
- Stratford-upon-Avon Parkway Station1.4 miles
- Wilmcote Station2.9 miles
Notes
Disclaimer - Property reference 33160377. The information displayed about this property comprises a property advertisement. Rightmove.co.uk makes no warranty as to the accuracy or completeness of the advertisement or any linked or associated information, and Rightmove has no control over the content. This property advertisement does not constitute property particulars. The information is provided and maintained by Sheldon Bosley Knight, Warwickshire. Please contact the selling agent or developer directly to obtain any information which may be available under the terms of The Energy Performance of Buildings (Certificates and Inspections) (England and Wales) Regulations 2007 or the Home Report if in relation to a residential property in Scotland.
Map data ©OpenStreetMap contributors.





