
4 bedroom detached house for sale
Old House Garden, High Street, Edwinstowe

- PROPERTY TYPE
Detached
- BEDROOMS
4
- BATHROOMS
2
- SIZE
Ask agent
- TENUREDescribes how you own a property. There are different types of tenure - freehold, leasehold, and commonhold.Read more about tenure in our glossary page.
Freehold
Description
The modern design of this home offers a fresh and stylish living space for you to make your own. This property also enables you to choose your own designs such as kitchen, flooring and shower panels and splash backs!
Don't miss out on the opportunity to call this beautiful property your new home!
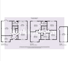
Entrance Hall - With access to the downstairs W.C., two reception rooms and the kitchen/diner.
Kitchen/Diner - 7.08 x 3.52 (23'2" x 11'6" ) - Complete with a range of modern range of units and cabinetry with work surfaces over. Not to mention integrated appliances and a large window to rear elevation.
Utility - 1.77 x 2.14 (5'9" x 7'0") - Including an inset sink. With door access to rear elevation,
W.C. - 1.57 x 0.88 (5'1" x 2'10") - Including low flush WC and an inset sink.
Living Room - 5.55 x 4.15 (18'2" x 13'7" ) - Fantastic in size this living room is a perfect space for the whole family to enjoy, there are french doors leading to the rear garden, allowing easy access on those wonderful summer months as well as an abundance of natural light. The room also benefits from a central heating radiator and your own choice of flooring.
Office - 4.15 x 2.34 (13'7" x 7'8") - Two windows to the front elevation allow natural light to flood the room, there is also a central heating radiator and your own choice of flooring.
Landing - With access to four double bedrooms, the master including an ensuite and the well appointed family bathroom.
Bedroom One - 4.21 x 4.07 (13'9" x 13'4" ) - This room is a fantastic size for a master bedroom and you will benefit from your own choice of flooring a central heating radiator and a large window to rear elevation overlooking trees. There is also access to a private ensuite.
En-Suite - 2.22 x 1.78 (7'3" x 5'10" ) - Complete with a three-piece suite including a double shower, hand wash basin and low flush WC. With window to rear elevation.
Bedroom Two - 3.99 x 3.84 (13'1" x 12'7" ) - Having your own choice of flooring, the room is great in size and benefits from a central heating radiator and a large window to front elevation.
Bathroom - 2.41 x 3.14 (7'10" x 10'3") - Comprising a four-piece suite. With a bathtub, shower cubicle, hand wash basin and low flush WC.
Bedroom Three - 3.46 x 3.60 (11'4" x 11'9" ) - Again a great size being a double bedroom the room also allows your own choice of flooring, a central heating radiator and a large window to rear elevation overlooking the trees.
Bedroom Four - 3.55 x 2.81 (11'7" x 9'2") - Brilliant size for a fourth bedroom as it you can still fit a double bed, the room also allows your own choice of flooring a central heating radiator and had a window to front elevation.
Garage - Benefiting for an electric garage door, there is also electric point inside and a further UPVC door to the rear for even further easy access. This grage will cover all your storage needs.
Outside - Including an enclosed garden to the rear of the property, the garden will come with laid to lawn and a slabbed patio area, with the trees to the rear this is the perfect garden to enjoy the summer months in, as it is truly a tranquil space. There is also a great sized driveway to the front not forgetting the access to the single garage.
Brochures
Old House Garden, High Street, EdwinstoweBrochure- COUNCIL TAXA payment made to your local authority in order to pay for local services like schools, libraries, and refuse collection. The amount you pay depends on the value of the property.Read more about council Tax in our glossary page.
- Ask agent
- PARKINGDetails of how and where vehicles can be parked, and any associated costs.Read more about parking in our glossary page.
- Yes
- GARDENA property has access to an outdoor space, which could be private or shared.
- Yes
- ACCESSIBILITYHow a property has been adapted to meet the needs of vulnerable or disabled individuals.Read more about accessibility in our glossary page.
- Ask agent
Energy performance certificate - ask agent
Old House Garden, High Street, Edwinstowe
Add an important place to see how long it'd take to get there from our property listings.
__mins driving to your place
Get an instant, personalised result:
- Show sellers you’re serious
- Secure viewings faster with agents
- No impact on your credit score
Your mortgage
Notes
Staying secure when looking for property
Ensure you're up to date with our latest advice on how to avoid fraud or scams when looking for property online.
Visit our security centre to find out moreDisclaimer - Property reference 33379371. The information displayed about this property comprises a property advertisement. Rightmove.co.uk makes no warranty as to the accuracy or completeness of the advertisement or any linked or associated information, and Rightmove has no control over the content. This property advertisement does not constitute property particulars. The information is provided and maintained by BuckleyBrown, Mansfield. Please contact the selling agent or developer directly to obtain any information which may be available under the terms of The Energy Performance of Buildings (Certificates and Inspections) (England and Wales) Regulations 2007 or the Home Report if in relation to a residential property in Scotland.
*This is the average speed from the provider with the fastest broadband package available at this postcode. The average speed displayed is based on the download speeds of at least 50% of customers at peak time (8pm to 10pm). Fibre/cable services at the postcode are subject to availability and may differ between properties within a postcode. Speeds can be affected by a range of technical and environmental factors. The speed at the property may be lower than that listed above. You can check the estimated speed and confirm availability to a property prior to purchasing on the broadband provider's website. Providers may increase charges. The information is provided and maintained by Decision Technologies Limited. **This is indicative only and based on a 2-person household with multiple devices and simultaneous usage. Broadband performance is affected by multiple factors including number of occupants and devices, simultaneous usage, router range etc. For more information speak to your broadband provider.
Map data ©OpenStreetMap contributors.







