
6 bedroom detached house for sale
The Smithy, Gullom Holme, Milburn, Penrith, Cumbria

- PROPERTY TYPE
Detached
- BEDROOMS
6
- BATHROOMS
2
- SIZE
Ask agent
- TENUREDescribes how you own a property. There are different types of tenure - freehold, leasehold, and commonhold.Read more about tenure in our glossary page.
Freehold
Key features
- Substantial, detached family home
- Rural setting with pastoral backdrop towards the Pennines
- 4 bedroom main house with attached 2 bedroom annex
- Gardens to front and rear, with ample off road parking
- Well located for access to Penrith and Appleby
- Viewing highly recommended
Description
Sat in a generous plot, with a pastoral outlook to the rear towards the Pennines, in a small hamlet handy for the village of Milburn, The Smithy is a most appealing rural family residence, located in this popular area, well served for transport links making it easily accessible to Penrith and the historic market town of Appleby.
Formerly the blacksmiths to the estate of the nearby Howgill Castle, the property retains many original features, the most notable being the sandstone forge.
The original section of the property dates to the eighteenth century, with a number of extensions having been added over the years, the accommodation now comprising an entrance hall / sitting room, dining room, lounge and kitchen.
To the first floor are 4 bedrooms and a bathroom.
Access via the entrance hall / sitting room, the annex is self-contained, with its own entrance from the front into an open plan living dining room, with a rear hallway giving access to the 2 bedrooms and a shower room. Please note, currently the annex only has permission for use by a dependant relative.
Externally, the property sits well back from the road with ample parking and a well-stocked garden to the front, with an enclosed garden to the rear, laid mainly to lawn.
Found in well maintained order throughout, being ideal for multi-generational living, or subject to the necessary permissions, using the annex as a rental unit to provide useful income, viewing is highly recommended to appreciate.
Directions
From Penrith follow the A66 east to reach Kirkby Thore. Turn left at The Bridge and follow this road for approximately 2 miles. Turn left at the T junction and follow the signs to reach Milburn. The Smithy is on the right hand side after 0.8 miles.
Services
Oil powered central heating with mains electric and water being connected. Neither these services nor any boilers or radiators have been tested. Drainage is to a septic tank. Any alterations required to meet current regulations are to be the responsibility of the purchaser.
Material Information:
• Standard construction.
• We understand that broadband and mobile telephone reception are available. For an indication of speeds and supply please see:
• There is private off road vehicle parking.
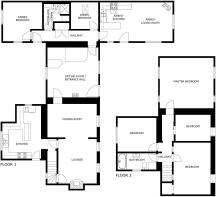
The Smithy
Entrance Hall / Sitting Room
4.67m x 4.57m
Dining Room
4.57m x 3.12m
Lounge
4.17m x 3.56m
Kitchen
4.95m (max) x 3.58m (max)
First Floor Landing
Master Bedroom
5.03m x 4.72m
Bedroom 2
3.53m x 3.18m
Bedroom 3
3.3m x 2.44m
Bedroom 4
4.65m x 3.48m
Bathroom
3.58m x 1.6m
The Annex
Living Dining Room
6.76m x 3.15m
Inner Hall
Bedroom 1
3.68m (max) x 3.9m (max)
Bedroom 2
2.5m x 2.5m
Shower Room
2.4m x 1.65m
Brochures
Particulars- COUNCIL TAXA payment made to your local authority in order to pay for local services like schools, libraries, and refuse collection. The amount you pay depends on the value of the property.Read more about council Tax in our glossary page.
- Band: C
- PARKINGDetails of how and where vehicles can be parked, and any associated costs.Read more about parking in our glossary page.
- Driveway,Off street
- GARDENA property has access to an outdoor space, which could be private or shared.
- Yes
- ACCESSIBILITYHow a property has been adapted to meet the needs of vulnerable or disabled individuals.Read more about accessibility in our glossary page.
- Ask agent
The Smithy, Gullom Holme, Milburn, Penrith, Cumbria
Add an important place to see how long it'd take to get there from our property listings.
__mins driving to your place
Get an instant, personalised result:
- Show sellers you’re serious
- Secure viewings faster with agents
- No impact on your credit score
Your mortgage
Notes
Staying secure when looking for property
Ensure you're up to date with our latest advice on how to avoid fraud or scams when looking for property online.
Visit our security centre to find out moreDisclaimer - Property reference PEN240301. The information displayed about this property comprises a property advertisement. Rightmove.co.uk makes no warranty as to the accuracy or completeness of the advertisement or any linked or associated information, and Rightmove has no control over the content. This property advertisement does not constitute property particulars. The information is provided and maintained by H&H Land & Estates, Penrith. Please contact the selling agent or developer directly to obtain any information which may be available under the terms of The Energy Performance of Buildings (Certificates and Inspections) (England and Wales) Regulations 2007 or the Home Report if in relation to a residential property in Scotland.
*This is the average speed from the provider with the fastest broadband package available at this postcode. The average speed displayed is based on the download speeds of at least 50% of customers at peak time (8pm to 10pm). Fibre/cable services at the postcode are subject to availability and may differ between properties within a postcode. Speeds can be affected by a range of technical and environmental factors. The speed at the property may be lower than that listed above. You can check the estimated speed and confirm availability to a property prior to purchasing on the broadband provider's website. Providers may increase charges. The information is provided and maintained by Decision Technologies Limited. **This is indicative only and based on a 2-person household with multiple devices and simultaneous usage. Broadband performance is affected by multiple factors including number of occupants and devices, simultaneous usage, router range etc. For more information speak to your broadband provider.
Map data ©OpenStreetMap contributors.






