
Land for sale
Liskeard, Cornwall, PL14
- PROPERTY TYPE
Land
- SIZE
21,780 sq ft
2,023 sq m
Key features
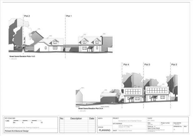
- Development opportunity for a mixture of four detached dwellings
- Conveniently positioned on the outskirts of Liskeard Town Centre
- Generous level site of approximately 0.5 acres
Description
Description
Situated on the periphery of Liskeard town centre, this fantastic development opportunity is available for the construction of four detached dwellings in a peaceful accessible location.
With good vehicular access, the level site is bordered by a mix of residential dwellings, having mains services within close proximity.
The properties are located within a popular residential area with multiple local amenities within walking distance of the site.
Planning
The full application details including the drawings and any other relevant or associated documents can be viewed online via
Application number PA24/02251
Alternatively full details can be obtained via our Liskeard office.
Directions
The land can be identified by a Kivells ‘For Sale’ board.
what3words — poorly.slick.denser
Viewings
Interested parties must contact the Liskeard Kivells office to arrange a viewing.
Services
Prospective purchasers must verify availability for any mains services required and the costs of connection of such services, for themselves.
Agent’s Note
There is the potential for the site to be split and 3 of the 4 dwellings be sold as a lot.
Contact Us
Kivells, 7-8 Bay Tree Hill, Liskeard, Cornwall PL14 4BE.
Other Information
Tenure
Freehold with vacant possession upon completion.
Local Authority
Cornwall Council, Chy Trevail, Beacon Technology Park, Bodmin, Cornwall PL31 2FR.
Easements, Wayleaves, Rights of Way
The property is offered for sale, subject to and with the benefit of all matters contained in or referred to in the Property and Charges Register of the registered title together with all public or private rights of way, wayleaves, easements and other rights of way, which cross the property.
Boundaries
Any purchaser shall be deemed to have full knowledge of all boundaries and neither vendor nor the vendor’s agents will be responsible for defining the boundaries or the ownership thereof.
Should any dispute arise as to the boundaries or any points on the particulars or plans or the interpretation of them, the question shall be referred to the vendor’s agent whose decision acting as experts shall be final.
Plan of the Land
The plan is based on an indicative, and the areas are not guaranteed. Purchasers must satisfy themselves as to their accuracy.
Location and Land Plans
Not to scale and for identification purposes only.
Brochures
ParticularsLiskeard, Cornwall, PL14
NEAREST STATIONS
Distances are straight line measurements from the centre of the postcode- Liskeard Station0.8 miles
- Coombe Station1.2 miles
- St. Keyne Station2.5 miles
Notes
Disclaimer - Property reference LIS240306. The information displayed about this property comprises a property advertisement. Rightmove.co.uk makes no warranty as to the accuracy or completeness of the advertisement or any linked or associated information, and Rightmove has no control over the content. This property advertisement does not constitute property particulars. The information is provided and maintained by Kivells, Liskeard. Please contact the selling agent or developer directly to obtain any information which may be available under the terms of The Energy Performance of Buildings (Certificates and Inspections) (England and Wales) Regulations 2007 or the Home Report if in relation to a residential property in Scotland.
Map data ©OpenStreetMap contributors.








