Plot for sale
Portway Road, Twyford, Buckingham
- PROPERTY TYPE
Plot
- SIZE
Ask agent
Key features
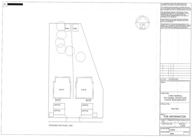
- 2 building plots with planning permission
- 2 detached 3 bed houses
- Parking for 2 cars with both houses
- Ready for connection to mains drainage
- Village location with amenities
Description
The plots are a mirror image and both have parking for 2 cars. The vendor advises that the site has a mains water supply to a standpipe and capped pipes at the front of the site ready for connection to mains sewerage.
There are connection points for electricity, Gigaclear fibre broadband and BT in the corner of the plot. Heating will be via air source / underfloor heating.
Further working drawings and buildings regulations specifications including SAPs are available upon request.
Twyford local amenities include a community shop, cafe, church, primary school and pub.
Brochures
Portway Road, Twyford, BuckinghamPortway Road, Twyford, Buckingham
NEAREST STATIONS
Distances are straight line measurements from the centre of the postcode- Bicester North Station5.4 miles
- Bicester Town Station5.6 miles
Notes
Disclaimer - Property reference 32003493. The information displayed about this property comprises a property advertisement. Rightmove.co.uk makes no warranty as to the accuracy or completeness of the advertisement or any linked or associated information, and Rightmove has no control over the content. This property advertisement does not constitute property particulars. The information is provided and maintained by Hunters, Bicester. Please contact the selling agent or developer directly to obtain any information which may be available under the terms of The Energy Performance of Buildings (Certificates and Inspections) (England and Wales) Regulations 2007 or the Home Report if in relation to a residential property in Scotland.
Map data ©OpenStreetMap contributors.





