The Ranks, ABERCARN, NP114SA

- PROPERTY TYPE
End of Terrace
- BEDROOMS
4
- BATHROOMS
1
- SIZE
Ask agent
- TENUREDescribes how you own a property. There are different types of tenure - freehold, leasehold, and commonhold.Read more about tenure in our glossary page.
Ask agent
Key features
- MODERN, UNIQUE, SUPER SPACIOUS, PURE DELIGHT
Description
The local amenities, library, pharmacist, local pubs, and good access to the nearby town of Newbridge that has a railway station for Cardiff and beyond.
The main road links for the M4 corridor are to hand, as are great schools, and abundance of rural walks. (you will love the well-respected scenic drive).
The property design is clever and maximises on space.
The garden to the rear provides a private space for the family to enjoy. Minimal maintenance with outer storage.
The front is laid to driveway, no problem with parking here.
Inside the décor is a mix of modern and contemporary colours and modern furnishings.
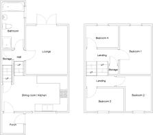
The front porch leads to the kitchen/dining area (5.35m x 2.96m).
It has modern décor and flooring, a front window, tiled splash backs, and is fitted with a range of wall and base cabinets having an eye level oven and microwave, a hob, a hood, a sink/drainer, and space for further appliances.
The lounge (3.96m x 3.36m) accessed by a small staircase, has laminate flooring, neutral décor, and French windows to the garden. A modern yet super cosy room.
The small hallway has useful fitted storage and a door to the bathroom.
The bath/shower room (3.80m x 1.81m) is super modern and spacious, with tiled flooring, modern décor, a side window and a white suite comprising of a bath, a wash basin set into vanity storage, a WC set into a wall, and a shower cubicle with a mixer shower and glazed surround.
The four bedrooms are reached by a split-level upper landing that has fitted storage.
Bedroom one (3.99m x 2.58m) a spacious room has a rear window, carpet, and modern décor.
Bedroom two (2.95m x 2.07m) has modern décor, carpet, and an attractive dormer window.
Bedroom three (3.16m x 1.97m) has modern décor, carpet, and a dormer window.
Bedroom four (2.68m x 1.81m) has a rear window, modern décor, and carpet flooring.
- COUNCIL TAXA payment made to your local authority in order to pay for local services like schools, libraries, and refuse collection. The amount you pay depends on the value of the property.Read more about council Tax in our glossary page.
- Ask agent
- PARKINGDetails of how and where vehicles can be parked, and any associated costs.Read more about parking in our glossary page.
- Yes
- GARDENA property has access to an outdoor space, which could be private or shared.
- Yes
- ACCESSIBILITYHow a property has been adapted to meet the needs of vulnerable or disabled individuals.Read more about accessibility in our glossary page.
- Ask agent
The Ranks, ABERCARN, NP114SA
Add an important place to see how long it'd take to get there from our property listings.
__mins driving to your place
Get an instant, personalised result:
- Show sellers you’re serious
- Secure viewings faster with agents
- No impact on your credit score
Your mortgage
Notes
Staying secure when looking for property
Ensure you're up to date with our latest advice on how to avoid fraud or scams when looking for property online.
Visit our security centre to find out moreDisclaimer - Property reference THERANKS. The information displayed about this property comprises a property advertisement. Rightmove.co.uk makes no warranty as to the accuracy or completeness of the advertisement or any linked or associated information, and Rightmove has no control over the content. This property advertisement does not constitute property particulars. The information is provided and maintained by Cariad Property, Newbridge. Please contact the selling agent or developer directly to obtain any information which may be available under the terms of The Energy Performance of Buildings (Certificates and Inspections) (England and Wales) Regulations 2007 or the Home Report if in relation to a residential property in Scotland.
*This is the average speed from the provider with the fastest broadband package available at this postcode. The average speed displayed is based on the download speeds of at least 50% of customers at peak time (8pm to 10pm). Fibre/cable services at the postcode are subject to availability and may differ between properties within a postcode. Speeds can be affected by a range of technical and environmental factors. The speed at the property may be lower than that listed above. You can check the estimated speed and confirm availability to a property prior to purchasing on the broadband provider's website. Providers may increase charges. The information is provided and maintained by Decision Technologies Limited. **This is indicative only and based on a 2-person household with multiple devices and simultaneous usage. Broadband performance is affected by multiple factors including number of occupants and devices, simultaneous usage, router range etc. For more information speak to your broadband provider.
Map data ©OpenStreetMap contributors.





