
Pearl Close, Cambridge, CB4

- PROPERTY TYPE
Apartment
- BEDROOMS
2
- BATHROOMS
1
- SIZE
Ask agent
Key features
- Close To Cambridge North Train Station
- Popular Location Of Chesterton
- Option To Purchase Full Market Value
- Shared Ownership
- Parking
- Garden
- Two Allocated Parking Spaces
- Second Floor Apartment
- Quiet Location
Description
This property is available to purchase at full market value at £335,000 or on a Shared ownership scheme with Metropolitan Thames Valley at 30% £100,500 or more share if desired share
Shared Ownership is based on 30%, Shared ownership rent is £696.10 per month for remaining 70%. 100% is available for purchase.
Service Charge and ground rent £206.92 per month from 01/04/2025.
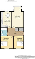
The residence boasts a spacious, well-lit reception room for entertaining or relaxing. One of its most alluring features is the view, which can be enjoyed all year round. The room comfortably accommodates a variety of furniture arrangements, making it a versatile space to suit your needs.
The property has a well-proportioned kitchen, natural light, and enough space for a dining area. The kitchen has been designed with functionality, creating a pleasant environment for cooking and dining.
The flat comprises two double bedrooms, both of which benefit from abundant natural light. The first bedroom is especially spacious, offering ample room for furniture without compromising on space. The second bedroom, whilst still generous in size, offers a cozy and inviting space. The hallway is spacious and offers ample storage.
The property has a stylish bathroom fitted with a bath with a shower over and a heated towel rail.
This flat is energy efficient with an EPC rating of 'C', making it not only environmentally friendly but also cost-efficient.
In all, this property offers a unique blend of comfort and practicality, creating a home that is as inviting as it is functional, and one that truly stands out in the market.
Lease Term; 99 Years from 22 Nov 2005.
EPC band: C
Buyers Guide, please see the video link on this advert for the following;
EPC, Tenure, Council Tax, Planning Permissions & proposals, Flood risks, Internet, Transport, Schools and much more..
Dan Burbridge, Yopa Cambridge Estate Agent Leading the concept of affordable fees, superior marketing, and excellent service.
Disclaimer
Whilst we make enquiries with the Seller to ensure the information provided is accurate, Yopa makes no representations or warranties of any kind with respect to the statements contained in the particulars which should not be relied upon as representations of fact. All representations contained in the particulars are based on details supplied by the Seller. Your Conveyancer is legally responsible for ensuring any purchase agreement fully protects your position. Please inform us if you become aware of any information being inaccurate.
Money Laundering Regulations
Should a purchaser(s) have an offer accepted on a property marketed by Yopa, they will need to undertake an identification check and asked to provide information on the source and proof of funds. This is done to meet our obligation under Anti Money Laundering Regulations (AML) and is a legal requirement. We use a specialist third party service together with an in-house compliance team to verify your information. The cost of these checks is £82.50 +VAT per purchase, which is paid in advance, when an offer is agreed and prior to a sales memorandum being issued. This charge is non-refundable under any circumstances.
- COUNCIL TAXA payment made to your local authority in order to pay for local services like schools, libraries, and refuse collection. The amount you pay depends on the value of the property.Read more about council Tax in our glossary page.
- Ask agent
- PARKINGDetails of how and where vehicles can be parked, and any associated costs.Read more about parking in our glossary page.
- Yes
- GARDENA property has access to an outdoor space, which could be private or shared.
- Yes
- ACCESSIBILITYHow a property has been adapted to meet the needs of vulnerable or disabled individuals.Read more about accessibility in our glossary page.
- Ask agent
Energy performance certificate - ask agent
Pearl Close, Cambridge, CB4
Add an important place to see how long it'd take to get there from our property listings.
__mins driving to your place
Get an instant, personalised result:
- Show sellers you’re serious
- Secure viewings faster with agents
- No impact on your credit score

Your mortgage
Notes
Staying secure when looking for property
Ensure you're up to date with our latest advice on how to avoid fraud or scams when looking for property online.
Visit our security centre to find out moreDisclaimer - Property reference 352010. The information displayed about this property comprises a property advertisement. Rightmove.co.uk makes no warranty as to the accuracy or completeness of the advertisement or any linked or associated information, and Rightmove has no control over the content. This property advertisement does not constitute property particulars. The information is provided and maintained by Yopa, East Anglia & London. Please contact the selling agent or developer directly to obtain any information which may be available under the terms of The Energy Performance of Buildings (Certificates and Inspections) (England and Wales) Regulations 2007 or the Home Report if in relation to a residential property in Scotland.
*This is the average speed from the provider with the fastest broadband package available at this postcode. The average speed displayed is based on the download speeds of at least 50% of customers at peak time (8pm to 10pm). Fibre/cable services at the postcode are subject to availability and may differ between properties within a postcode. Speeds can be affected by a range of technical and environmental factors. The speed at the property may be lower than that listed above. You can check the estimated speed and confirm availability to a property prior to purchasing on the broadband provider's website. Providers may increase charges. The information is provided and maintained by Decision Technologies Limited. **This is indicative only and based on a 2-person household with multiple devices and simultaneous usage. Broadband performance is affected by multiple factors including number of occupants and devices, simultaneous usage, router range etc. For more information speak to your broadband provider.
Map data ©OpenStreetMap contributors.





