Light industrial facility for sale
Unit 23 & 24 Hall Barn Road Industrial Estate, Hall Barn Road, CB7
- SIZE AVAILABLE
1,500-4,000 sq ft
139-372 sq m
- SECTOR
Light industrial facility for sale
- USE CLASSUse class orders: B1 Business, B2 General Industrial, B8 Storage and Distribution and Class E
B1, B2, B8, E
Key features
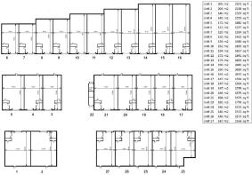
- 1779 sq ft & 1572 sq ft Units available
- Choose from units 23 and 24
- Deal Direct with the Developer - No Estate agents
- Units on a new development of twenty six units
- rental also available
- Internet connection cctv and automatic number plate recognition included with managment
- Guest parking and allocated parking spaces for each unit
Description
A brand new build development of steel portal frame construction with brick and block work to the elevations being under a pitched insulated roof with light panels.
Single span steel frame construction
Insulated panels to elevation and roof 5 meter high electric loading door
6 meter / 20 ft eaves
LED internal/external lighting
Toilet & Tea point
Small internal fitted office
3 allocated parking spaces
Site wide CCTV & internet delivered by superfast broadband included foc
3 phase mains supply
Unit 23 & 24 Hall Barn Road Industrial Estate, Hall Barn Road, CB7
NEAREST STATIONS
Distances are straight line measurements from the centre of the postcode- Soham Station3.3 miles
- Kennett Station5.4 miles
Notes
Disclaimer - Property reference IslehamSale. The information displayed about this property comprises a property advertisement. Rightmove.co.uk makes no warranty as to the accuracy or completeness of the advertisement or any linked or associated information, and Rightmove has no control over the content. This property advertisement does not constitute property particulars. The information is provided and maintained by Marman Ltd, Herts. Please contact the selling agent or developer directly to obtain any information which may be available under the terms of The Energy Performance of Buildings (Certificates and Inspections) (England and Wales) Regulations 2007 or the Home Report if in relation to a residential property in Scotland.
Map data ©OpenStreetMap contributors.






