
4 bedroom detached house for sale
Greenleaves, 10 Castlehame Park, St Ola

- PROPERTY TYPE
Detached
- BEDROOMS
4
- BATHROOMS
4
- SIZE
Ask agent
- TENUREDescribes how you own a property. There are different types of tenure - freehold, leasehold, and commonhold.Read more about tenure in our glossary page.
Freehold
Description
The property is extremely well insulated, energy efficient and benefits from solar panels which reduce electricity costs.
Viewing is essential to fully appreciate the quality and unique layout of Greenleaves.
Completion certificate has now been issued.
Greenleaves is a spacious modern 4 bedroom dwelling which has recently been completed to the highest standards. This beautifully presented family home has a Greek villa feel with bi-fold doors leading to the patio and garden from the lounge, kitchen/diner and hobby room/study.
The property is extremely well insulated, energy efficient and benefits from solar panels which reduce electricity costs.
Viewing is essential to fully appreciate the quality and unique layout of Greenleaves.
Air to water central heating – underfloor on ground floor, radiators on first floor.
Velux and uPVC framed double glazed windows.
Redland solar photovoltaic panels with a 25-year performance guarantee.
Spacious first floor living room.
Lounge with 3 pane bi-fold doors.
Large kitchen with dining area featuring 4 panel bi-fold doors and quality fitted kitchen with integral hob, cooker hood, eye level oven and dishwasher.
Craft room/study with 3 pane bi-fold doors.
Utility room with sink and plumbing for a washing machine.
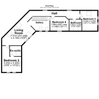
Master bedroom with en-suite and dressing room, on ground floor.
Shower room and plant room also on ground floor.
Bedroom 2 with en-suite, on first floor.
Bathroom with shower over bath, bedrooms 3 & 4 on first floor.
Integral garage with electric up and over door.
Stone chip driveway in front of garage.
Enclosed garden with lawn and newly planted bushes and shrubs.
- COUNCIL TAXA payment made to your local authority in order to pay for local services like schools, libraries, and refuse collection. The amount you pay depends on the value of the property.Read more about council Tax in our glossary page.
- Band: F
- PARKINGDetails of how and where vehicles can be parked, and any associated costs.Read more about parking in our glossary page.
- Yes
- GARDENA property has access to an outdoor space, which could be private or shared.
- Yes
- ACCESSIBILITYHow a property has been adapted to meet the needs of vulnerable or disabled individuals.Read more about accessibility in our glossary page.
- Ask agent
Greenleaves, 10 Castlehame Park, St Ola
Add an important place to see how long it'd take to get there from our property listings.
__mins driving to your place
Get an instant, personalised result:
- Show sellers you’re serious
- Secure viewings faster with agents
- No impact on your credit score
Your mortgage
Notes
Staying secure when looking for property
Ensure you're up to date with our latest advice on how to avoid fraud or scams when looking for property online.
Visit our security centre to find out moreDisclaimer - Property reference BRS230078. The information displayed about this property comprises a property advertisement. Rightmove.co.uk makes no warranty as to the accuracy or completeness of the advertisement or any linked or associated information, and Rightmove has no control over the content. This property advertisement does not constitute property particulars. The information is provided and maintained by Lows Solicitors, Orkney. Please contact the selling agent or developer directly to obtain any information which may be available under the terms of The Energy Performance of Buildings (Certificates and Inspections) (England and Wales) Regulations 2007 or the Home Report if in relation to a residential property in Scotland.
*This is the average speed from the provider with the fastest broadband package available at this postcode. The average speed displayed is based on the download speeds of at least 50% of customers at peak time (8pm to 10pm). Fibre/cable services at the postcode are subject to availability and may differ between properties within a postcode. Speeds can be affected by a range of technical and environmental factors. The speed at the property may be lower than that listed above. You can check the estimated speed and confirm availability to a property prior to purchasing on the broadband provider's website. Providers may increase charges. The information is provided and maintained by Decision Technologies Limited. **This is indicative only and based on a 2-person household with multiple devices and simultaneous usage. Broadband performance is affected by multiple factors including number of occupants and devices, simultaneous usage, router range etc. For more information speak to your broadband provider.
Map data ©OpenStreetMap contributors.






