1st - 3rd Floors, 1-5 Wormwood Street, London, EC2M 1RQ
- SIZE AVAILABLE
1,173-3,522 sq ft
109-327 sq m
- SECTOR
Office to lease
Lease details
- Lease available date:
- Now
- Lease type:
- Long term
Key features
- Total internal space - 3,522 square feet
- Prominent City location
- Recently refurbished
- Attractive entrance lobby
- All floors approximately 1,174 square feet
- Excellent natural light
- New VRV air conditioning
- Each floor has a modern kitchenette and WC
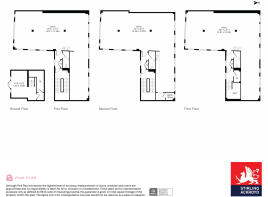
Description
The property is arranged over first to third floors and is offered as a self-contained HQ otherwise it can be rented on a floor by floor basis. The ground floor offers an attractive entrance lobby recently refurbished. A modern and bright stairwell offers access to the three upper floors.
Each floor benefits from excellent natural light with views both into the City but also into the Boltoph Gardens. Offering open plan layouts, good ceiling heights and modern VRV air conditioning. Each floor has a modern kitchenette and dedicated WC.
Location
Occupying a prominent position on Wormwood Street close to the junction with Bishopsgate. The location benefits from having some of the City's destination eateries on its doorstep to include, Duck & Waffle, Sushi Samba, The Ivy City Garden and many more. With Leadenhall Market a short stroll away and the recently re-developed Broadgate Circle Shopping Centre in addition to Spitalfields Market.
The main transport hub would be Liverpool Street Station offering mainline, underground and Elizabeth Lines providing excellent links throughout London and beyond.
Viewings
By appointment with Stirling Ackroyd
Energy Performance Certificates
EPCEPCEPCEPCBrochures
1st - 3rd Floors, 1-5 Wormwood Street, London, EC2M 1RQ
NEAREST STATIONS
Distances are straight line measurements from the centre of the postcode- Liverpool Street Station0.1 miles
- Aldgate Station0.3 miles
- Moorgate Station0.3 miles
Notes
Disclaimer - Property reference 270875-2. The information displayed about this property comprises a property advertisement. Rightmove.co.uk makes no warranty as to the accuracy or completeness of the advertisement or any linked or associated information, and Rightmove has no control over the content. This property advertisement does not constitute property particulars. The information is provided and maintained by Stirling Ackroyd, Commercial. Please contact the selling agent or developer directly to obtain any information which may be available under the terms of The Energy Performance of Buildings (Certificates and Inspections) (England and Wales) Regulations 2007 or the Home Report if in relation to a residential property in Scotland.
Map data ©OpenStreetMap contributors.





