Marsh Lane, Boston, Lincolnshire, PE21 7FP
- SIZE AVAILABLE
248,292 sq ft
23,067 sq m
- SECTOR
Industrial development for sale
Key features
- 29,000sqft of High Quality Steel Warehouse Buildings
- 2 Large Modern Units For Sale Freehold With Vacant Possession of Part
- Part Let to Motor Parts Direct Limited at 85,000 pa, ERV £160,000 pa
- Development Potential to Expand the Industrial Estate
- Total Site 5.7 acres, Rear Development Land Extending to 3.6 acres
- Suitable for Over 60,000sqft of Trade Counter Units
Description
The market town of Boston is located on the South Lincolnshire Fens approximately 115 miles to the north of London and has a population of around 73,000 residents, a strong retail offering, good sporting facilities, a number of well-regarded schools, twice weekly market and a port.
The property is located to the south of the town on the Marsh Lane Industrial Estate close to the entrance with the main A16 trunk road connecting Boston to Peterborough and the A1 trunk road.
The site is located on the main Riverside Industrial Estate off Marsh Lane.
Description...
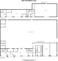
The site comprises modern industrial warehouse buildings at the front with undeveloped land at the rear.
The front building comprises 2 units, 1 let to Motor Parts Direct on Full Repairing and Insuring terms, the remainder being let to C F Parkinson Technology who are expanding and will vacate the building at the end of Q1 2025.
Front Unit - Motor Parts Direct
This is a steel framed building with a customer reception area, production space and offices with retail shop, production storage area.
Schedule of Accommodation
Production Storage Area
944m2
10,160ft2
Ancillary Accommodation
25m2
270ft2
Offices Net
44m2
475ft2
Total
1,014m2
10,900ft2
Rear Unit - C F Parkinson
This comprises a modern production facility with offices, steel framed construction.
Schedule of Accommodation
Production Storage Area
1,195m2
12,816ft2
Canteen
140m2
1,510ft2
Offices Net
274m2
2,950ft2
Mezzanine Storage
482m2
5185ft2
Footprint
1,650m2
17,760ft2
In the front of the units is parking and a communal road leading to the rear.
Rear Development Land
To the rear of the existing buildings and parking there is further industrial land extending to an additional 3.6 acres, 1.46 hectares.
A sketch scheme has been completed showing an additional 3,810sqm, 41,000sqft of industrial trade counter units and currently being allocated in the Local Plan for industrial development.
The design shown incorporates 4 rows of terraced units, the units extending to 2,280sqft, 211sqm of accommodation with 6m internal eaves, roller shutter doors, insulated cladding panels, kitchenette, office and WC.
Tenure...
The property is available freehold subject to an occupational lease by Motor Parts Direct Limited and the remains of the occupancy of C F Parkinson who are hoping to vacate the site at the end of Q1 2025. The passing rent is £85,000 pa with an ERV of £160,000 pa excluding the potential income for the storage land.
EPC...
Where required, EPCs will be available on request.
Viewing...
All viewings are to be made by appointment through the agent. Poyntons Consultancy.
Energy Performance Certificates
EPC 1Brochures
Marsh Lane, Boston, Lincolnshire, PE21 7FP
NEAREST STATIONS
Distances are straight line measurements from the centre of the postcode- Boston Station1.1 miles
- Hubberts Bridge Station3.9 miles
Notes
Disclaimer - Property reference MarshLaneIndUnitLand. The information displayed about this property comprises a property advertisement. Rightmove.co.uk makes no warranty as to the accuracy or completeness of the advertisement or any linked or associated information, and Rightmove has no control over the content. This property advertisement does not constitute property particulars. The information is provided and maintained by Poyntons Consultancy Commercial, Lincolnshire Office. Please contact the selling agent or developer directly to obtain any information which may be available under the terms of The Energy Performance of Buildings (Certificates and Inspections) (England and Wales) Regulations 2007 or the Home Report if in relation to a residential property in Scotland.
Map data ©OpenStreetMap contributors.






